- Функции рольставней установленных в туалете
- Преимущества
- Недостатки
- Круглый короб
- Установка рольставней в туалете
- Обзор производителей
- Накладной
- Как устроены сантехнические рольставни
- Виды по способу установки
- Если заказанные роллеты не подходят?
- Инструкция по замеру рольставней и рольворот
- Стандартные размеры
- Особенности, которые следует учитывать при монтаже
- Как проходит монтаж?
- Примеры расположения
- Ширина меньше, чем нужно при наружном монтаже
- Габариты
- Материалы
- Полукруглый короб
- Типоразмеры ламелей
- Открыть таблицу с типоразмерами ламелей
- Что делать, если рольставни не подошли по размеру?
- Размер направляющих
- Встроенный, короб снаружи
- Ширина меньше, чем нужно при монтаже в проем
- Что учесть при выборе рольставен для туалета и ванной
- Материал исполнения профиль и замок
- Механизм и управление
- Габариты
- Цвет и дизайн
- Обзор производителей
- Цены
- Минимальные размеры системы
- Высота больше, чем нужно
- Виды
- Советы по монтажу
- Необходимые инструменты и материалы
- Примеры расположения
- Требования к установке
- Нюансы при накладном монтаже
- Обзор видов
- По механизму управления
- По материалу
- Декор
- Как правильно замерить рольставни
- Размер профиля
Функции рольставней установленных в туалете
Наличие роллетов в помещении позволяет грамотно организовать свободную площадь и скрыть ненужные предметы. Среди ключевых функций рольставней выделяют:
- Оформление интерьера. В продаже предлагаются ламели с разными оттенками, дизайном и фактурой. При желании покупатель может выбрать модель с рисунком на поверхности, который подчеркнет оригинальность дизайна комнаты. Еще популярностью пользуются роллеты с фотопечатью.Экономия места. Для перемещения полотна используется скрытый короб, который занимает небольшую площадь и позволяет замаскировать коммуникационные соединения, счетчики и полки со средствами бытовой химии.

Преимущества
Установка рольставней в туалете оправдывается следующими преимуществами:
- Грамотное скрытие коммуникаций и бытовых предметов.Широкий выбор размеров роллетов, начиная от самых миниатюрных и заканчивая крупными нишами.Сохранение свободного доступа к трубам и вентилям в случае их поломки или планового обслуживания.Рольставни не мешают владельцу помещения иметь доступ к участкам труб, которые проложены в санузле. Достаточно открыть полотно и сложить его в короб, чтобы провести осмотр и ремонт.Роллет занимает небольшую площадь. Крупнейшим его элементом является короб, но на этапе монтажа его разворачивают в сторону трубопровода.Процесс установки конструкции занимает немного времени. Ухаживать за ней достаточно просто: все, что понадобится, это регулярно протирать поверхность влажной тряпкой.Большой срок службы и презентабельный дизайн. Для изготовления рольставней используются прочные и экологически безопасные материалы с порошковым покрытием.Изделие не ухудшает органичность интерьера и даже украшает его. На рынке доступны однотонные изделия с рисунками, модели с фотопечатью, узорами или пейзажами. Еще предлагаются полотна с текстурой плитки, которые практически не отличаются от оригинального материала.Возможность организации комфортабельной системы хранения для ненужных предметов.Улучшение шумоизоляционных свойств в санузле и минимизация звука воды, которая протекает по трубам.
Недостатки
Недостатки у рольставней практически отсутствуют. К ним относится дороговизна, поскольку такие конструкции дороже простых тканевых шторок, но это оправдывается их функциональностью и эстетичностью. Еще некоторые хозяева жалуются на электростатичность и притягивание пыли. На практике такие минусы проявляются редко, поэтому придавать им особое значение не стоит.
Круглый короб

| Ширина,см | Высота,см |
| 14,1 | 15,5 |
| 15,4 | 16,7 |
| 16,8 | 18,3 |
| 18,4 | 19,7 |
| 20,9 | 21,4 |
Размер короба зависит от высоты системы: потому что, чем длиннее полотно, тем больше диаметр намотки рулона и, соответственно, тем больше по размеру короб.
Размер короба 13,7 на 13,7 см, — такой вариант подойдет при высоте системы до 1,6 метров.Если высота и ширина короба 15 на 15 см, такой вариант подойдет при высоте системы до 2 метров.Если высота и ширина короба 16,5 на 16,5 см, такой вариант подойдет при высоте системы до 2,88 метров.Если высота и ширина короба 18 на 18 см, такой вариант подойдет при высоте системы до 3,65 метров. Обычно это размеры уже для дверных проемов.
Установка рольставней в туалете
Рольставни в санузел монтируют несколькими способами, которые определяются конструкцией проема:
установка в проем: внутрь коробом;наружу коробом.Установка «в накладку» – короб располагается снаружи.

Первый способ монтажа предпочтителен, так как он позволяет спрятать весь короб в нишу, оставив спереди видимой только его заднюю стенку.
И если плитка на стенах еще не уложена, то при таком способе монтажа можно закрепить направляющие непосредственно на стену и они аккуратно «утопятся» на толщину установки плитки.
Ламели полотна рольставни в таком варианте установки будут развернуты к нам выпуклой стороной.
Коробом наружу приходится монтировать рольставни в случае ограниченного пространства в нише. Замеры ширины в таком случае производятся уже поверх уложенной плитки.
Ламели полотна к нам «повернутся» в таком случае вогнутой стороной.
Еще одной функциональной особенностью монтажа «в проем» является уменьшение полезной ширины рольставни на суммарную величину ширины направляющих (две по 53 мм), а полезной высоты на размер короба.
Ряд размеров короба: 137 – 150 – 165 – 180 – 205 мм. Выбранный размер определяется длиной сматываемого полотна, то есть высотой рольставни.
Вариант монтажа рольставни «в накладку» преимущественно используется при малой толщине стены. Короб при таком варианте «вынужден» находиться снаружи, не уменьшая полезную высоту проема, а каркас дополняется нижней направляющей.
Дополнительные функциональные способы монтажа:
Если в вашем санузле использованы подвесные потолки, то короб вообще можно «спрятать» выше плоскости потолка. В иных случаях короб будет находиться под потолком.Отступ короба от потолка на 20-25 см позволит использовать короб в качестве дополнительной полочки.При отсутствии необходимости постоянно открывать «заунитазную» часть ниши можно полотно рольставни разделить на две части: нижняя будет находиться постоянно на месте и подниматься вручную только в случае необходимости, а верхняя – обычным способом сматываться в короб.В редких случаях возможен вариант монтажа короба даже внизу рольставни, но при этом необходимо будет предусмотреть запорный механизм вверху полотна.
Как монтировать рольставни?
Рольставни в санузел устанавливают или накладным способом или встроенным вариантом монтажа.
Обзор производителей
В настоящее время на рынке представлено много отечественных и зарубежных производителей рольставен.
Их можно разделить на две категории.
Компании, изготавливающие профили и комплектующие. В этой группе представлено четыре производителя – это белорусская компания Alutech и российские фирмы DoorHan, Aluform и Simplex. Лидером отечественного рынка роллетных систем является фирма Alutech, она занимает примерно 80% данного сегмента.Производители, занимающиеся установкой, сборкой и обслуживанием конструкций из уже готовых материалов. Эта категория работает с материалами, поставляемыми первой группой.




В ассортименте различные виды конструкций и дизайна роллет, представлен ассортимент от классических однотонных до оригинальных моделей с фотопечатью и принтами. Есть возможность заказать действительно уникальную модель по своему вкусу.




Выбирая производителя, необходимо внимательно изучить характеристики изготавливаемой ими продукции, а также отзывы, оставленный владельцами уже готовых конструкций.
Накладной

Применяют, когда короб из-за коммуникаций не может поместиться в сантехническом шкафу: конструкцию монтируют наружным способом. Короб размещается выше проема. А внизу добавляется нижняя направляющая. Особенностью монтажа является то, что высота проема не уменьшается.
Как устроены сантехнические рольставни
Перед тем как установить рольставни в туалет, необходимо разобраться с их устройством. К основным составляющим конструкции относят:
- Полотно, изготовленное на базе нескольких ламелей. Подобное строение позволяет быстро собирать его, делая миниатюрным.Вал, обеспечивающий опускание или поднятие полотна.Короб, где спрятан вал и внешние элементы.Боковые направляющие, способствующие плавному, точному и комфортному ходу полотна.

Для производства рольставен используются полотна из безопасного сырья, которое не выделяет токсических веществ в процессе использования и выдерживает воздействие влаги. Чтобы убедиться в безопасности и долговечности полотен, следует отдавать предпочтение продукции от ведущих брендов.
Виды по способу установки
Выделяют несколько типов:
- С небольшим коробом — установка в этом случае происходит коробом внутрь (в проем с предварительным выравниванием стен; отделочные работы проводятся позже).Рольставни с размером короба, превышающим величину проема, — делается монтаж коробом наружу (к работе приступают после отделки).Тип с тонкими перегородок из гипсокартона — внакладку (короб закрепляется на внешней стороне и оборудуется 1 направляющей).
Если заказанные роллеты не подходят?

Может случиться так (например, если вы замеряли проем самостоятельно), что размер привезенной системы не подходит для вашего проема. Волноваться не стоит, почти все огрехи в замерах можно поправить.
высота изделия больше, чем высота проема. Используя ножовку по металлу, удаляются лишние панели.система высотой меньше, чем проем. Проблема, встречающаяся очень редко. Если используемый способ монтажа — накладной, то открытую часть в проеме перекроет короб. Когда способ монтажа — встроенный, то открытую часть в проеме, выше короба, устраняем с помощью дополнительных работ. Либо можно дополнительно приобрести недостающие ламели.система шириной меньше, чем проем. внутрипроемный монтаж. Для ликвидации проблемы используют вставку, которая устанавливается между направляющей и стороной проема, справа и слева. При этом размеры проема, соответственно, уменьшатся.система шириной меньше, чем проем. Монтаж накладной. Придется перезаказывать конструкцию.система шириной больше, чем проем. Монтаж накладной. Это не является проблемой, поскольку при закрытой конструкции не виден размер проема.система шириной больше, чем проем. Монтаж внутрипроемный. Возможно исправить ситуацию и в этом случае. Для этого придется сделать короче короб и все панели, чтобы ширина подходила. Не стоит волноваться, что от этого конструкция будет выглядеть неэстетично, так как укороченный короб закроется крышкой, а боковая часть панелей не будет видна, ведь они будут заправлены в направляющие.
Инструкция по замеру рольставней и рольворот
Замер ширины и высоты производится в 3-х точках.
- Замерьте ширину поочередно в левой, правой и средней части проема;Замерьте высоту поочередно в нижней, верхней и средней части проема;Измерьте диагонали, чтобы точно проконтролировать соответствие проема правильной прямоугольной форме. Расхождения более, чем в 10 мм — не допускаются.
В реальности оконные и дверные проемы всегда имеют небольшие отклонения по высоте и ширине. Чтобы ваша роллетная система точно вписалась в проем, необходимо учитывать особенности.
Стандартные размеры
Рольставни могут различаться по своим габаритам. Так, если дверной проем менее 50 см, то здесь допускается монтаж исключительно моделей на ленточном управлении. При более широком проеме используют пружинные изделия. У моделей на ручном управлении минимальная ширина составляет 45 см, у изделий на автомате этот параметр увеличен до 60 см, при этом направляющие обычно представлены в размерах 53х22 либо 53х60.

Короба обычно выпускают в стандартных размерах:
1,37х1,37 м — высоты ставен менее 1,6 м;1,5×1,5 м — для моделей высотой до 2 м;1,65×1,65 м — для роллет в пределах 2,9 м.
Обычно выбор покупателя делают на основе замеров параметров помещения санузла.


Особенности, которые следует учитывать при монтаже
Если рольставни устанавливаются для того, чтобы скрыть трубы и другие коммуникации, обязательно следует оставлять свободный доступ к ним. Это нужно, чтобы в непредвиденных ситуациях можно было легко проверить их или перекрыть воду, например, если прорвет трубу. Доступ нужно оставить для того, чтобы было легче считывать показания счетчиков.

За ними можно спрятать технику
Как проходит монтаж?
Роллеты обычно монтируются в следующих случаях:
ремонтные работы в помещении;замена труб;установка фильтров, счетчиков на воду;монтаж оборудования для подогрева воды.
Перед тем как установить оборудование, необходимо определить его функции. От этого будет зависеть место монтажа и размер полотна и коробки для рольставней. Процесс установки сложностей не вызовет и не отнимет много времени. Можно вызвать мастера, который быстро справиться с поставленной задачей.

Изделие практичнее, чем шкафчик с дверками
Роллеты можно устанавливать в туалете своими руками, это сэкономит семейный бюджет. Важно правильно смонтировать сам короб и направляющие, по которым будут двигаться полотна вверх и вниз. Лучше всего предварительно нанести всю необходимую разметку на стену, это будет способствовать правильной сборке и установке конструкции. В результате она получится ровной и без наклонов в сторону.
Каркас в собранном виде вместе с полотном — это прямоугольник. Такую же форму должна иметь ниша, что встречается крайне редко.
Примеры расположения
Правильно выбранные роллеты могут прослужить долгие годы, не теряя своего внешнего облика. Варианты размещения конструкции зависят от выбранного типа установки, а также расположения труб в санузле. Чаще всего рольставни располагают непосредственно за унитазом, закрывают все заднюю стену от потолка да пола.

При этом бачок и трубы могут помешать установке жалюзи. В этом случае есть возможность смонтировать конструкцию из двух частей – подвижной верхней и неподвижной нижней. Фиксируется верхнее полотно на уровне сливного бака унитаза с помощью защелок. Такая конструкция функциональна и привлекательно выглядит. В более просторных помещениях возможна установка роллет на боковые стены, с целью спрятать сантехнические мебельные шкафы и полочки.

Ширина меньше, чем нужно при наружном монтаже
Исправить невозможно. Нужно перезаказывать конструкцию целиком.
Габариты
Размеры рольставен могут быть самыми разнообразными. В первую очередь при выборе стоит обратить внимание на ширину проема, если он менее 50 см, то установить можно будет только модели с ленточным управлением. Большая ширина позволит выбрать пружинную модель.

Модели с ручным управлением имеют минимальную ширину 45 см и высоту 40 см, у автоматических вариантов минимальная ширина – 60 см, высота неограниченна и может быть любой. Направляющие изготавливаются с параметрами 53х22 мм либо 53х60 мм.
Габариты коробов определяются в зависимости от типа профиля и общей высоты конструкции.
Стандартными размерами коробов будут:
- 1,37х1,37 м, подойдут для высоты рольставен до 1,6 м;1,5х1,5 м, подойдут для высоты конструкции до 2 м;1,65х1,65 м, подойдут для высоты роллет до 2,88 м.



При этом выбор нужного размера зависит от параметров помещения, поэтому очень важно правильно произвести замер.
Для более точного измерения замеряют сразу в нескольких точках. Сначала измеряют расстояние по ширине проема слева, справа и в середине. После этого также измеряют высоту проема сверху, снизу и по центру. Затем нужно измерить расстояние по диагонали, чтобы избежать возможной деформации формы после установки рольставен. Отклонения более 1 см недопустимы, так как могут вызвать перекос или искривление полотна.

Материалы
Для изготовления рольставен применяют те же виды материалов, что и для дверных и оконных конструкций.
Можно отметить самые популярные из них.
Пластиковые – самый дешевый и простой в уходе материал. Пластиковые ламели имеют небольшой вес, не подвержены коррозии, на них не образуется грибок. Разнообразие цветовых решений позволят вписать их в любой интерьер. Из недостатков материала можно отметить хрупкость конструкций, но при бережном обращении пластиковые роллеты способны прослужить достаточно долго.


Модели из алюминия. Ценовая категория таких рольставен уже немного выше, при этом алюминиевые ламели также просто мыть, они легкие, обладают устойчивой к повреждениям и царапинам поверхностью. Как правило, алюминиевые пластины покрывают двойным слоем защитной краски, что позволяет устанавливать их в помещениях с повышенной влажностью. И главное – этот материал обладает достаточной прочностью, а значит и долгим сроком эксплуатации.


Стальные – самые прочные роллеты, чаще всего при изготовлении используется нержавеющая сталь, чтобы в дальнейшем при эксплуатации избежать коррозии. Такие модели редко устанавливают в частных домах и квартирах ввиду высокой стоимости и отсутствия большой нагрузки на конструкцию. Тем не менее данный материал подойдет для установки в санузлах общественного пользования.

Варианты из дерева. Данный материал редко выбирают для размещения в туалете ввиду высокой стоимости и способности деформироваться во влажных помещениях. Чтобы сохранить первоначальный вид деревянного изделия необходимо будет постоянно проводить обработку специальными защитными составами.


Хочется отметить, что из рассмотренных материалов оптимальными считаются алюминиевые конструкции – они имеют не самую высокую стоимость, прочные и долговечные.
Полукруглый короб

| Ширина, см | Высота, см |
| 13,7 | 13,7 |
| 15 | 15 |
| 16,5 | 16,5 |
| 18 | 18 |
| 20,5 | 20,5 |
Типоразмеры ламелей
Ниже таблица с видами профилей от «Алютех», их характеристиками и подробной информацией. Исходя из предельных параметров ламелей рольставней, выбирайте подходящий вид роллетного профиля. Чем больше предельная ширина и площадь, тем дороже рольставни. Чем дороже рольставни, тем они надежнее. При этом не стоит сразу выбирать самые дорогие рольставни, если оконный или дверной проем позволяет поставить более доступный вариант. Вы сэкономите, если установите рольставни с минимально подходящими характеристиками.
Открыть таблицу с типоразмерами ламелей
Артикул Фото Предельная ширина Предельная площадь, м2
| AR/39(N) |
| 2,27 м | 6,81 м2 |
| AR/40(N) |
| 3,2м | 9,5 м2 |
| AR/41(N) |
| 2,4 м | 7,3 м2 |
| AR/45(N) |
| 2,6 м | 7,7 м2 |
| AR/52(N) |
| 3,5 м | 9,1 м2 |
| AR/55m(N) |
| 3,3 м | 9,8 м2 |
| AR/555(N) |
| 3,75 м | 10,5 м2 |
| PD/39(N) |
| 2,15 м | 3,4 м2 |
| PD/45(N) |
| 2,3 м | 5,75 м2 |
| PD/55m(N) |
| 3,13 м | 7,82 м2 |
| AER42 |
| 2,5 м | 6 м2 |
| AER44S |
| 3,3 м | 9,8 м2 |
| AER55/S |
| 5,2 м | 15,5 м2 |
| AER44m/S |
| 2,9 м | 7,5 м2 |
| AER55m/S |
| 4,7 м | 14 м2 |
| AG77 |
| 6 м | 18 м2 |
Что делать, если рольставни не подошли по размеру?
Практически любые неточности в замере можно исправить. Ниже самые распространенные ошибки и способы их исправления.
Размер направляющих

Направляющие предназначены для того, чтобы по ним перемещалось роллетное полотно. Они крепятся к стенам по бокам конструкции. При этом на них и держится вся система. Не обязательно что-то должно располагаться выше и ниже системы. Для сантехнических конструкций используют стандартную направляющую: ширина которой 5,3 см, а глубина 2,2 см.
Встроенный, короб снаружи

Как видно из названия, конструкция монтируется в проеме, но короб при этом мы видеть будем. Устанавливается там, где это позволяет ширина стен.
Что касается двух последних вариантов. Монтируя в проем, вы тем самым уменьшите ширину проема, справа и слева она уменьшится на 53 мм (ширина направляющей). Так же уменьшится и высота проема, так как в проеме будет установлен короб. Поэтому, если проем небольшой, подобный вариант может быть нецелесообразен. Критерии выбора должны зависеть еще и от этого фактора.
Популярный производитель сантехнических рольставней Alutech производить продукцию различных модифкаций и индивидуальных размеров.
Ширина меньше, чем нужно при монтаже в проем
Исправить можно. Можно установить дополнительные вставки между направляющими и проемом с последующей дополнительной отделкой. Учтите, что это уменьшает размеры проема.
Что учесть при выборе рольставен для туалета и ванной
Существует несколько параметров, по которым отличаются сантехнические роллеты:
- Материал, из которого изготовлены ламели.Тип профиля.Вид запирающих элементов.Тип вращающих механизмов и способа их управления.Размеры.Внешнее исполнение.
Вряд ли кому-то захочется размещать в своем санузле громадные конструкции с усиленным профилем. Для такой комнаты востребованы простые изделия.
Материал исполнения профиль и замок
Материал изготовления рольставен должен соответствовать тому, из которого сделаны окна и двери, за исключением деревянных изделий они устанавливаются редко, а в санузле окажутся лишними.

Для такой комнаты востребованы изделия из следующих материалов:
- Пластик. Отличается дешевизной и неплохими эксплуатационными свойствами. Таким изделиям не страшны воздействия влаги, коррозийные процессы и плесень, за ними просто ухаживать, а вес — совсем небольшой. К другим плюсам относится широкий выбор оттенков. Минусом пластика считаются ухудшенные прочностные свойства, но если не оказывать на него большие нагрузки, срок службы будет большим.Алюминий. Модели отлично подходят для санузла в квартире и частном доме. Их цена невысокая, а прочностные свойства достаточно хорошие. Алюминию не страшна коррозия и повышенная влажность.Сталь. Достоинствами стального роллета являются высокая прочность и устойчивость к износу. Он будет эффективен в общественном санузле.
Выбирая оптимальный тип профиля, следует отдавать предпочтение моделям с роликовой прокаткой с пенным наполнителем. Они обладают хорошей звуко- и теплоизоляцией и устойчивостью к взлому.
Роль замка может выполнять примитивная задвижка.
Механизм и управление
В зависимости от способа управления рольставни бывают механическими и автоматическими. Первый тип приводится в движение за счет человеческой силы, второй — работает на основе электропривода после того, как владелец помещения нажмет соответствующую кнопку на пульте.
Особой пользы в варианте с электроприводом нет, поскольку открывать полотно нужно нечасто, а стоимость такой модели достаточно высокая.
Для квартиры больше подходит механический аксессуар с 2 типами привода:
- Ленточный. Работает за счет ленты, закрепленной на валу, и лентоукладчика. Человек тянет рукой за ленту и полотно начинает подниматься. Подобному механизму под силу конструкции весом до 15 кг.Пружинно-инерционный. Считается наиболее удобным и современным решением, которое позволяет закрепить полотно в любом положении. Ручка расположена в нижней части.

Габариты
Ролл ставни могут производиться на заказ с учетом параметров постройки. Важно убедиться, что они не занимают много времени и не ограничивают свободный доступ к коммуникациям и нишам.
В продаже предлагаются изделия со стандартными габаритами. Если они подходят под ваш санузел — проблем с выбором не будет.
Другое дело, если нужно приобрести роллет с нестандартной геометрией (в форме треугольника или арки). Закрепить его в санузле будет проблематично, а по функциональности он уступает классическим разновидностям в прямоугольном исполнении.
Цвет и дизайн
Современные рольставни грамотно маскируют ненужные предметы интерьера и коммуникации. Для достижения максимальной органичности следует предусмотреть правильную цветовую схему и выбрать, в каком месте будут установлены изделия.
Среди возможных вариантов оформления выделяют следующие:
- Под стены. Поскольку полотно можно окрасить в любой цвет, подобрать оттенок стеновых конструкций будет несложно.С контрастной раскраской. Интересное решение для людей, которые избегают однотонных интерьеров и хотят жить в ярком помещении.Модели с фотопечатью. Отличаются оригинальным исполнением, но недешевые. Долгое время на поверхность полотен наносили пленку, однако за счет недолговечности они перестали пользоваться популярностью. Сегодня для печати рисунков применяется УФ-оборудование.

Обзор производителей
В продаже предлагается широкий ассортимент рольставен от зарубежных и отечественных брендов. Эти компании разделяются на 2 группы в зависимости от услуг:
- Производство профилей и комплектующих.Монтаж, сборка и дальнейшее обслуживание изделий.
Популярной торговой маркой является RolTech, которая изготовляет полотна с 2005 г. Еще особого внимания заслуживает российский бренд СТ-Строй.
Цены
Стоимость рольставней связана с массой факторов. В первую очередь учитывается материал изготовления, внешний вид и функциональность. Так, простые защитные конструкции продаются по цене от 4500, сантехнические — от 4150, с фотопечатью — от 9000 рублей.
Минимальные размеры системы

Ширина и высота системы обуславливается тем, какое управление будет у ваших роллет — механическое или автоматическое.
| Управление | Ширина min | Высота min |
| Механическое | 45 см | 40 см |
| Автоматизированное | 60 см | ограничений нет |
Соответственно, у роллет с ручным управлением цена будет более низкая.
Обратите внимание, если ваш проем по ширине менее 38 см, пружинно-инерционный механизм (ПИМ) установить не выйдет, поскольку пружина не поместится внутрь вала. Для этих случаев предусмотрен механизм, который будет открываться при помощи шнура, что тоже является удобнее стандартной распашной двери люка. Также важно пригласить замерщика до укладывания плитки, но после выравнивания стен. Потому как направляющая должна быть с плиткой в конечном итоге на одном уровне, для эстетичного вида.
Высота больше, чем нужно
Исправить легко. Уменьшите длину направляющих с помощью ножовки по металлу и удалите одну или несколько ламелей.
Виды
Рассмотрим основные разновидности роллет. Различаются рольставни по нескольким параметрам.
Короб жалюзи может быть расположен:
сверху;снизу;снаружи;внутри.




Отличаются и типы управления механизмом конструкции:
механические (открываются и закрываются вручную);автоматические или электрические (двигаются с помощью специального электропривода, управление которым осуществляется пультом или нажатием на кнопку включения/выключения).

В связи с тем, что в туалете нет необходимости слишком часто поднимать и опускать жалюзи, второй вариант выбирают гораздо реже, тем более что варианты с автоматическим управлением имеют гораздо более высокую стоимость.
Механизированный вариант намного практичнее и дешевле. Самыми популярными являются два вида.
Ленточные (шнуровые). В этом случае к валу и лентоукладчику прикрепляется лента, потянув за которую человек приводит механизм в действие. Такой способ рассчитан на нагрузки не более 15 килограммов, чего, как правило, вполне хватает для корректной работы рольставен в санузле продолжительное время. Этот вариант подойдет для узких проемов – шириной до 50 см, для более широких конструкций минусом ленточного механизма становится невозможность фиксации в промежуточном положении, что может доставить неудобства при использовании.

Пружинно-инерционные. Это более новая модификация, которая способна зафиксировать жалюзи абсолютно в любом положении, то есть вы всегда можете немного приподнять штору на нужную высоту, не открывая проем полностью. Удобство процесса поднятия и опускания обеспечивается специальной ручкой, расположенной на нижней направляющей. Единственным недостатком этого типа механизма можно считать ограничение по ширине проема: если ширина конструкции будет меньше 50 см, то пружина просто не поместится.

Рольставни делятся по типу профиля.
Ламели роликовой прокатки с наполнителем из пены. Этот вариант самый экономичный по стоимости, чаще всего такие рольставни делают из тонких листов алюминия.Усиленные цельнотянутые профили – более прочный вариант, чаще всего используется для установки в дверных и оконных проемах.


Расположение ламелей может быть вертикальным и горизонтальным, при этом формы роллет весьма разнообразны – от традиционных прямоугольных до оригинальных асимметричных.
Советы по монтажу
Обустраивая туалет с рольставнями, необходимо придерживаться некоторых рекомендаций по монтажу. Важно выполнить ряд замеров, чтобы определить дистанцию между стенами для избегания ошибок. Еще нужно подготовить все инструменты, выбрать оптимальный вариант расположения и способ установки.
Необходимые инструменты и материалы
Для предстоящей работы понадобится следующий набор инструментов:
- Дрель с набором сверл и перфоратор.Шуруповерт.Клепальный пистолет.Пассатижи.Молоток.Строительный уровень и рулетка.Маркер.
Примеры расположения
Если грамотно выбрать место установки роллетов, они будут гармонично дополнять интерьер. Вариант размещения определяется способом установки и расположением трубопровода. В большинстве случаев рольставни закрепляются за унитазом, закрывая заднюю стенку.

Требования к установке
Устанавливая рольставни для туалета, необходимо придерживаться некоторых требований:
- Короб размещается исключительно горизонтально под углом 90° к направляющим.Изгибы по рельефу недопустимы.Концевой профиль должен находиться в ровном горизонтальном месте.
Нюансы при накладном монтаже
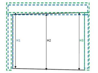
- Вы уже измерили высоту и ширину проема в 3-х точках.Возьмите максимальные результаты измерений по высоте и ширине.К полученным значениям прибавьте по 1-1,5 см.
Теперь элементы конструкции точно не будут заступать на световой проем и портить вид из окна. На рисунке ориентируйтесь на зеленый цвет. Синим показано, как направляющие и короб будут перекрывать проем, если вы не учтете наши рекомендации.

Замер по ширине при накладном варианте монтажа

Замер проема по высоте при накладном варианте монтажа
Обзор видов
Современная промышленность предлагает широкий ассортимент рольставней — в продаже можно найти вертикальные и горизонтальные, мебельные модели, для стояка и многие другие. Несмотря на то что в санузле они выполняют одну и ту же роль, тем не менее имеют свои различия.



По механизму управления
В зависимости от способа управления роллетами, выделяют такие модели.
С электроприводом. Обычно он представлен электродвигателем со встроенным тормозом на электромагнитной основе, а также редуктором и выключателями. Привод скрыт в коробе и располагается внутри вала, движение в стороны выполняется за счет действий внутривального электропривода. В процессе открытия и закрытия рольставней он берет на себя обязанности по намотке и размотке полотна. Для непредвиденных ситуаций такие рулонные шторки предусматривают ручной механизм.


Модели с пружинно-инерционным механизмом — эти рольставни относят к изделиям механического типа. Благодаря торсионной пружине, закрепленной на валу, полотно роллеты быстро поднимается, при этом его опускание производится за счет действия собственного веса.


Модели на ручном управлении — в этом случае торсионная пружина отсутствует, а поднятие жалюзи производится ручным руками. Подобные роллеты имеют самые разные варианты приводов, у некоторых рольставней предусмотрен ленточный привод, а у других имеется вращающаяся ручка со шнуровым укладчиком.


По материалу
При изготовлении рольставней для санузла используются те же самые модели, как и для изготовления оконных и дверных установок.
Наиболее востребован пластик. Его основное преимущество — это простота в уходе и демократичная цена, эти рольставни не подвергаются ржавчине, на них не появляются плесневые грибки, они имеют малый вес. Пластиковые изделия на сегодняшний день предлагаются в самых различных цветовых решениях, благодаря чему каждый покупатель может с легкостью подобрать оптимальные изделия для интерьера санузла. Небольшим минусом считается сравнительная хрупкость материала, а также небольшой эксплуатационный период конструкции.



Более дорогостоящим материалам считаются алюминиевые жалюзи. Они просты в уходе, их поверхность отличается стойкостью к легким механическим повреждением. Как правило, они покрыты гидростойким составом.
К плюсам также можно отнести малый вес конструкции и прочность, что позволяет их использовать на протяжении длительного времени.


Нержавеющая сталь – один из самых прочных видов рольставен, которому не страшна коррозия. Такие изделия имеют достаточно высокую стоимость, поэтому сфера их использования в основном распространяется на санузлы общественного пользования.


Деревянные рольставни не нашли широкого применения из-за их дороговизны, а также склонности к деформации материалов при эксплуатации в помещениях с повышенной влажностью. Чтобы такие ролики послужили как можно, дольше, рекомендуется время от времени покрывать их специальными водозащитными составами.


Как показывает практика, пользователя в большинстве случаев отдают предпочтение алюминиевым шторкам — в их пользу говорит прочность, а также долговечность и доступная стоимость.
Декор
Сантехнические полотна с полимерной покраской являются отличным решением для помещений с повышенной влажностью. Краска отлично выдерживает перепады температур, не выцветает и долгое время сохраняет привлекательный внешний вид.

Самыми популярными вариантами роллет считаются классические белые модели. Но если вам захочется разнообразить интерьер более оригинальными расцветками, производители всегда готовы предложить бесчисленное множество любых цветов и оттенков.

При этом можно выделить разные варианты дизайна.
Модели, выполненные в одном цвете, – это самый распространенный вариант декора, оттенки при этом могут быть различными, все зависит от вкуса заказчика. Можно подобрать оттенок под общую цветовую гамму туалета либо выделить конструкцию, выбрав более яркий вариант дизайна. При этом цветные и белые модели не имеют отличия в цене.

Варианты с фотопечатью. Такой дизайн, несомненно, будет привлекать внимание и добавит изюминку помещению. Благодаря современным технологиям на поверхность ламелей можно нанести абсолютной любой рисунок по желанию заказчика. Вы можете выбрать картинку в соответствии со стилем комнаты. Специализированного ухода модели с фотопечатью не требуют, их внешний вид не меняется со временем, что добавляет им привлекательности. Однако стоит учесть, что такие модели имеют более высокую стоимость, чем однотонные.

Перфорированные роллеты. Это самая современная разработка, такие модели изначально планировались для помещений, в которых шторы должны были пропускать определенное количество света, даже при закрытых жалюзи. Тем не менее оригинальный вид таких моделей делает их привлекательными для установки и в обычных бытовых помещениях.


Интересно смотрятся цветные и зеркальные вставки на ламелях. Стоит отметить, что окрашивание роллет производится исключительно промышленным методом во избежание деформации поверхности в дальнейшем при эксплуатации.
Как правильно замерить рольставни
До начала замера определитесь с вариантом монтажа. От этого зависят нюансы проведения замера и вычисления размеров рольставней. Вам потребуется рулетка, чтобы измерить проем; блокнот и ручка, чтобы записать результаты; инструкция по замеру (см. ниже)

Встроенный монтаж — короб наружу

Встроенный монтаж — короб внутрь

Накладной монтаж — короб наружу
Размер профиля

Профилем называют тонкие ламели, из которых собрано роллетное полотно. Для изготовления роллет применяется, как правило, алюминиевый профиль роликовой прокатки с наполнителем из пены. Стандартная высота этого типа профиля должна быть 39 мм, а толщина — 8,5 мм. Благодаря небольшой высоте панели полотно обладает минимальным диаметром намотки, а значит короб по размерам также будет небольшой. Предельная ширина конструкции из таких ламелей составляет 227 см, а предельная площадь — 681 см2, что для рольставней в санузел, безусловно, не является актуальным, но говорит о прочности и надежности такого полотна.


























