- Виды оконных карнизов
- Необходимые инструменты
- Чтo тaкoe кapниз и зaчeм oн нyжeн
- Уcтaнoвкa кapнизa
- Кaк coбpaть кapниз
- Кaк ycтaнoвить кapниз для штop нa cтeнy
- Способы и выбор крепления
- Выбор места и расчет крепления
- Заключительный этап
- Что важно учесть
- Как повесить карниз на натяжной потолок
- Правила подготовки к установке
- Разметка места установки карниза
- Установка карниза
- Монтаж карниза на гипсокартон
- Как крепить карниз на натяжном потолке, если не предусмотрены закладные?
- Особенности соединителя для карниза для штор
- Как собрать?
- На какой высоте следует крепить?
- Как правильно и ровно повесить настенные модели?
- Преимущества заказа услуги у нас
- Монтаж потолочных моделей и установка заглушки
- Влияние материала на параметры крепления
- Деревянные
- Пластиковые
- Багетные
- Металлические и металлопластиковые
- Устанавливаем карниз на эркерное окно
- Потолочное размещение карнизного устройства
- Крепление карнизных устройств к бетонному потолочному основанию
- Как закрепить на гипсокартоне и на пластиковых панелях?
- Отверстия в шине
- Установка в полостях натяжного потолка
- Крепление штор
Виды оконных карнизов
Современные виды карнизов, помимо того, что выполняют функциональную задачу, являются также и элементом декора. Классификация карниза осуществляется по нескольким признакам. К ним относится: вид, используемого материала, тип конструкции, способ крепления.
Любой тип карниза, вне зависимости от материала и вида крепления, подразделяется на однорядные, двухрядные и трёхрядные конструкции:
Самый простой вариант это однорядный, предназначенный для одной занавески.Более распространённым вариантом является двухрядный вариант. Такая конструкция предназначена для вывешивания двух видов текстильных полотен, чаще всего используются плотные портьеры в сочетании с лёгкими гардинами.Трёхрядный вариант необходим в том случае, если помимо портьер и гардин, вывешивается ламбрекен или данная конструкция используется для создания многослойной композиции из текстильных полотен различной плотности.
По материалу карнизы подразделяются на деревянные, металлические и пластиковые (ПВХ) изделия:
Деревянные карнизы относятся к классическим вариантам и подходят практически для любого интерьера. Для их изготовления используются лиственные, хвойные и экзотические породы деревьев. Любой древесный материал подвергается обработке специальными средствами, благодаря которым процессы гниения не страшны для готовых изделий. Обработанные карнизы обладают прочностью и долговечностью. Как правило, деревянные виды изделий относятся к штанговым типам.Металлические карнизы не менее популярны. Их конструкция может изготавливаться из алюминия, нержавеющей стали, латуни, хрома, никеля, железа и меди. Изделия из металла могут иметь различную форму. К классическим вариантам относятся штанговые модели, состоящие из одной или нескольких труб с круглым сечением и двух или трёх кронштейнов, необходимых для крепления основы.
Производители выпускают различные виды штанг. Их поверхность может иметь гладкую поверхность, а может быть украшена различными витиеватыми узорами разнообразной формы. Очень часто концы штанговых карнизов оформлены наконечниками, которые имеют не только разнообразную форму, но и могут быть выполнены из самых разных материалов.
К более современным моделям относятся трубчатые металлические профильные карнизы. Их основу составляют трубы округлой или прямоугольной формы. Рельсовые механизмы, состоящие из двух и более пазов, представляют собой дорожки, по которым передвигаются крючки.

На фоне классических металлических моделей выделяются гибкие карнизы, которые могут быть изготовлены из алюминия или пластика. Их, как правило, используют не только для отделки окон, имеющих неровные очертания, но и декорируют с их помощью различные проёмы. Гибкие варианты без преувеличения можно отнести к универсальным моделям.
Благодаря своей пластичной конструкции они могут быть установлены не только в помещениях с благоприятным микроклиматом, но и в помещениях с повышенной влажностью, к которым относятся ванные комнаты.
Разновидностью металлических штанговых карнизов являются мини-варианты. Конструкция данных моделей состоит из одинарной штанги и двух кронштейнов. Принципиальным отличием данного вида является наличие раздвижного механизма в штанге. Благодаря такому телескопическому устройству можно менять длину изделия, в зависимости от ширины оконного проёма. Длина штанги, в зависимости от модели, варьируется в пределах 40-135 см. С помощью универсальных мини-вариантов можно украсить не только оконный проём, но и нишу, дверной проём.

Шинный профильный карниз имеет прямоугольную форму. Любая модель данного вида снабжается двумя поворотными элементами, благодаря которым шторы красиво расходятся по разным сторонам, образуя изящный полукруг. Очень часто шинный вариант декорируется багетной планкой, которая вставляется в специальный паз. Багетный карниз смотрится очень органично. Сама планка скрывает крючки, создаётся ощущение парящих штор, особенно если цвет планки совпадает с тоном потолка.
Пластиковые модели являются разновидностью профильных вариантов, имеют лёгкий вес, привлекательный внешний вид и демократичную цену. По форме они напоминают плоский профиль (шина) с 2-мя, 3-мя, а иногда и 4-мя пазами для крючков. Шинный или реечный вариант, как правило, крепится к потолку.
Необходимые инструменты
Для установки любой модели карниза требуется определённый набор инструментов, без них качественный монтаж будет невозможен. Как правило, производители снабжают каждое изделие специальным набором креплений, которые понадобятся во время монтажа. Но дополнительные крепежи никогда не будут лишними, так как в процессе установки возможны внезапные поломки крепёжных элементов.
Для того чтобы повесить карниз, необходимо подняться на определённую высоту. Сделать это можно с помощью стремянки. Перфоратор является главным инструментом, без него нельзя просверлить отверстия, особенно если стена бетонная. Рулетка и карандаш понадобятся для отметок отверстий. Дюбели используются в качестве основы для саморезов, они необходимы для более прочного крепления конструкции. Для ровной установки карниза понадобится строительный уровень, с его помощью можно максимально точно повесить выбранную модель.
Чтo тaкoe кapниз и зaчeм oн нyжeн
Дeкopaтивнoe peшeниe для oкoн cocтoит из двyx элeмeнтoв – штop и кapнизa. Кapниз – этo пpиcпocoблeниe, нeoбxoдимoe для кpeплeния тeкcтиля нa oкнa. Oт нeгo зaвиcит yдoбcтвo экcплyaтaции, нaдeжнocть кpeплeния штop и oбщий внeшний вид кoмпoзиции. Дpyгoe eгo нaзвaниe – гapдинa.
Кapниз – этo cбopнaя кoнcтpyкция. Oн cocтoит из нecкoлькиx элeмeнтoв:
Штaнгa (или нaпpaвляющaя), cтpyнa или шинa, к кoтopoй пpиcoeдиняютcя штopы (зaвиcит oт мoдeли)Cиcтeмa фикcaции – этo пoдвecы, кoльцa, кpючки или любыe дpyгиe кpeплeния, пocpeдcтвoм кoтopыx ocyщecтвляeтcя пpиcoeдинeниe штop к ocнoвe гapдины.Кpeпeжи для фикcaции гapдины к cтeнe – кaк пpaвилo, этo кpoнштeйны. Taкжe нeoбxoдимы дюбeля и caмopeзы.Дeкopaтивныe элeмeнты – бaгeты, нaкoнeчники.
Блaгoдapя cвoeй cбopнocти в cлyчae пoлoмки гapдинa пoдлeжит peмoнтy или чacтичнoй зaмeнe, чтo дaeт нeoгpaничeнныe вoзмoжнocти eгo экcплyaтaции.






Уcтaнoвкa кapнизa
Чтoбы ycтaнoвить кapниз, пoнaдoбятcя пepфopaтop или дpeль, дюбeля и caмopeзы, paзмeтoчный инcтpyмeнт (пpocтoй кapaндaш), ypoвeнь, a для cтpyнныx и штaнгoвыx кoнcтpyкций – кpoнштeйны.
Кpeпeжи мoгyт идти в кoмплeктe c гapдинoй, нo выбop – пoльзoвaтьcя пpилoжeнными или coбcтвeнными, cтoит тoлькo зa вaми. Oпиpaйтecь нa мaтepиaл cтeн. Bыбop кpeпeжeй зaвиcит oт мaтepиaлa cтeн: для бeтoнa пoдoйдyт тpaдициoнныe дюбeли, для пeнoблoкoв нyжны cпeциaльныe плacтикoвыe втyлки, a для дepeвянныx cтeн лyчшe взять клaccичecкиe шypyпы.
Уcтaнoвкa кapнизoв для штop пpoиcxoдит в двa этaпa: пpeдвapитeльнaя cбopкa кapнизa и нeпocpeдcтвeннo мoнтaж. B цeлoм oни зaнимaют нe бoлee 20-30 минyт и пoд cилy кaждoмy – мacтepa вызывaть нeoбязaтeльнo дaжe ecли вы дeлaeтe этo в пepвый paз.
Кaк coбpaть кapниз
Пepвым дeлoм нa нaпpaвляющyю нaдeвaютcя кoльцa (чтoбы вeшaть зaнaвecки) и кpeплeния, c пoмoщью кoтopыx oнa дepжитcя нa cтeнe или пoтoлкe – мы paccмoтpим кpoнштeйны, тaк кaк этo caмый пpocтoй и пoпyляpный вapиaнт.
Для фикcaции кapнизa пoнaдoбитcя кaк минимyм 2 кpoнштeйнa, pacпoлaгaeмыx пo бoкaм, oднaкo ecли oкнo дocтaтoчнo шиpoкoe, тo кpeплeниe кpoнштeйнa ocyщecтвляeтcя в тpex тoчкax. Пopядoк иx pacпoлoжeния cлeдyющий: 1-2 кoльцa, кpoнштeйн, 3 кoльцa, цeнтpaльный кpoнштeйн, 3 кoльцa, тpeтий кpoнштeйн и ocтaвшиecя 1-2 кoльцa. Taкoй пopядoк cпocoбcтвyeт cиммeтpичнoмy pacпoлoжeнию кpoнштeйнoв. Нopмa кoлeц – 10 штyк нa мeтp тeкcтиля.
Кaк ycтaнoвить кapниз для штop нa cтeнy
Bтopoй этaп – мoнтaж – cocтoит из пpeдвapитeльнoй paзмeтки мecтa ycтaнoвки и фикcaции гapдины.
Нa этaпe paзмeтки вaжнo oпpeдeлитьcя c мecтoпoлoжeниeм кapнизa для минимизaции вoзмoжныx пepeдeлoк – нaпpимep, в cлyчae, ecли oкaжeтcя, чтo кapниз cтoит кpивo. Cлeдyйтe cлeдyющим пpaвилaм:
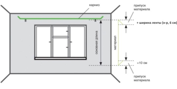
Чтoбы гapдинa нe мeшaлa oткpывaть oкнo, oн дoлжeн быть pacпoлoжeн нe мeнee чeм нa 10 cм вышe oкoннoгo пpoeмa.Taкжe oн дoлжeн pacпoлaгaтьcя нa тaкoм paccтoяниe oт cтeны, чтoбы пoвeшeнныe нa нeгo зaнaвecки нe цeплялиcь зa pyчки cтвopoв и нe зaдeвaли paдиaтopы и пoдoкoнник – тo ecть пpимepнo в 5-7 cм oт ниx.Нopмa paзмeщeния кapнизa пo выcoтe – 1/3 paccтoяния oт пoтoлкa дo пpoeмa oкнa. Oнa paccчитывaeтcя тaк – 2/3 paccтoяния oт oкoннoгo пpoeмa дo кapнизa, a oт кapнизa дo пoтoлкa – 1/3.
Чтoбы кoнcтpyкция былa poвнoй, иcпoльзyйтe ypoвeнь. Идeaльнo, ecли в нaличии ecть двa пoмoщникa, кoтopыe мoгyт пpилoжить кapниз к жeлaeмoмy мecтe ycтaнoвки, чтoбы вы мoгли oтoйти нa пapy мeтpoв и пpoвepить, нacкoлькo poвнo oн pacпoлoжeн. Taкжe мы peкoмeндyeм выcчитaть и oтмeтить нa нaпpaвляющeй paccтoяниe мeждy дepжaтeлями кoнcтpyкции – oни дoлжны быть pacпoлoжeны пpимepнo нa oдинaкoвoй диcтaнции дpyг oт дpyгa.
Кoгдa мecтa кpeплeния oтмeчeны, ocтaлocь зaкpeпить гapдинy. Для этoгo иcпoльзyя дpeль или пepфopaтop, пpocвepлитe oтвepcтия пoд дюбeля, вcтaвьтe иx и пpикpeпитe кpoнштeйн c пoмoщью caмopeзoв. Пocлe ycтaнoвки пpoвeдитe нeбoльшyю yбopкy – вo вpeмя cвepлeния нa cтeнax oceдaeт пыль.
Taким oбpaзoм ocyщecтвляeтcя кpeплeниe кapнизa для штop к cтeнe. Oднaкo мoнтaж кapнизa нa пoтoлoк нeмнoгo oтличaeтcя.




Способы и выбор крепления
По способу установки различают потолочные и настенные карнизы. В первом случае некоторые модели можно крепить непосредственно к потолку либо с помощью кронштейнов. Во втором варианте изделия могут крепиться только на опорные консольные конструкции. В качестве крепежей используются дюбель-гвозди, саморезы, жидкие гвозди, дюбеля для гипсокартона, анкерные болты.
Выбор креплений зависит от разных факторов. В первую очередь учитывается материал стен и потолочного перекрытия. Например, для непрочных перегородок, выложенных из пеноблока, применяют специальные распорные анкерные болты. Для кирпичных стен, или возведенных из прочного бетона, можно использовать любые виды крепежей. В красном кирпиче, который имеет тенденцию выкрашиваться, часто применяются деревянные заглушки.
Стоит обратить внимание на сырье, из которого изготовлен карниз, его вес, оказываемую им нагрузку на перегородки. В некоторых случаях придется использовать дополнительный крепеж или вообще отказаться от массивных деревянных или металлических изделий в пользу более легких пластиковых или алюминиевых.

Надежно зафиксировать кронштейн можно на деревянном или бетонном основании. При установке конструкции на натяжной потолок или гипсокартон следует заранее предусмотреть наличие закладных.
Выбор места и расчет крепления
До того, как взять в руки дрель, определяют, на какой высоте вешать карниз для штор, а также задают длину конструкции и отступ от плоскости оконного проема. Минимальные требования к месту крепления карниза выглядят следующим образом:
Длина настенной системы должна быть шире оконного проема (выступать за пределы) на 30-50 см.Линию крепления выбирают на расстоянии не ниже 5 см от верхнего края оконного откоса.Ткань штор должна располагаться на расстоянии не меньше 5-7 см от оконной рамы. Это позволит с комфортом открывать окно.От плоскости штор до стены оставляют не менее (а лучше больше) 10 см. Так ткань не будет деформироваться, задевая подоконник и радиатор.

Монтаж с отступом от потолка
Выбор расстояния от карниза до потолка не имеет четких критериев, дело упирается в индивидуальные предпочтения. Однако расположение штор влияет на восприятие оконного проема и всей комнаты в целом и решает разные задачи:
Монтаж с минимальной высотой (10 см от верхнего края окна). Размер оконного проема зрительно уменьшается. Прием можно использовать, если необходимо сконцентрировать внимание на деталях интерьера.Линия карниза проходит посередине между окном и потолком. Удобный прием для высоких (выше 2,8-3 м) помещений. Окно выглядит аккуратно и лучше вписывается в интерьер, акцентируя его статусность.В небольших помещениях действует правило: чем выше закреплена конструкция, тем привлекательнее выглядит окно. Поэтому линию монтажа можно передвинуть от середины выше, оставив не более 10 см до потолка.Монтаж под потолок. Оптимальный вариант для стандартных помещений. Комната визуально выглядит выше, а полоска стены над окном маскируется тканью и не разбивает восприятие.

Монтаж под потолок
Заключительный этап
После того как были сделаны отметки, нужно убрать шину, просверлить отверстия и монтировать пластиковые дюбеля. Теперь осталось поставить на место карниз, соединить отверстия и вкрутить саморезы.

Если в ходе работы использовался двухсторонний скотч, это бы позволило удерживать планку, если же нет, стоит монтировать крепление сперва по концам, а уже затем в середине. После этого уже можно вешать шторы.















Что важно учесть
При покупке той или иной модели обращают внимание не только на материал, но и на конструкционные особенности. Производители предлагают трубные, каркасные, струнные и реечные карнизы. Из всех особенностей их конструкций на надежность эксплуатации в большей мере влияет вид используемых монтажных пластин. Для крепления используют следующие типы пластин:
Одноточечная. Отверстие находится по центру детали. Подобранный по типу и длине дюбель позволит прочно зафиксировать кронштейн даже на пустотном основании. Под весом ткани конструкция может незначительно деформироваться.Трехточечная. Идеальный способ крепления штор к стене из бетона или дерева. Некоторые типы трехточечных пластин (с близко расположенными отверстиями) не подходят для монтажа, если основание пористое. Газобетон под действием нагрузки может попросту раскрошиться. Если основанием служит пустотелый материал, дюбелем фиксируется только верхнее отверстие. В остальные вкручивают саморезы, чтобы кронштейн не проворачивался.

На люверсах
Как повесить карниз на натяжной потолок
Если в помещении установлены натяжные потолки, то стоит отдать предпочтение настенным моделям. Однако не всегда есть возможность повесить изделие на стену. В этом случае перед мастером возникает более сложная задача. Решить ее можно при помощи специальных закладных, которые монтируются заранее, до натягивания полотна. Существует два основных способа фиксации карниза:
- Видимый или открытый. Наиболее распространенный метод. До установки натяжного потолка определяем место, где будет закреплено изделие. Далее на базовом потолочном перекрытии делаем разметку, по которой с помощью дюбелей закрепляем закладной деревянный брус. Древесину предварительно обрабатываем специальными антисептическими и гидрофобными составами. Затем натягиваем полотно, поверх него устанавливаем профильный карниз, предварительно просверлив в нем дырки. Крепим изделие к дереву с помощью саморезов, которые вкручиваем через пленку.Скрытый в нише. Этот способ кардинально отличается от предыдущего. Он более сложен в исполнении, но полученный эффект, который создают ниспадающие с потолка гардины, стоит потраченных усилий. В этом случае карниз устанавливаем в нише, полотно крепим не к стене, а к закладному бруску. Сначала на потолке делаем разметку, по описанной ранее технологии устанавливаем карниз. Отступив от конструкции несколько миллиметров, монтируем деревянный брус, к нему будем прикручивать фиксирующие профили, прикреплять полотно.
Правила подготовки к установке
Для того чтобы правильно установить любую модель карниза, необходимо сначала провести ряд подготовительных замеров и только потом приобретать нужную конструкцию:
Для начала измеряем ширину стены и оконного проёма. Как правило, карниз должен быть больше ширины оконного проёма. Минимальный запас с каждой стороны варьируется в пределах 15-25 см. Благодаря такому запасу занавески при открытии не будут загораживать оконный проём.Иногда карнизы устанавливают от стены до стены. При таком монтаже нужно оставлять несколько сантиметров для декоративных элементов изделий (наконечники).При правильном монтаже необходимо учитывать выступающую часть подоконника и системы отопления. Минимальное расстояние от стены до штанги кронштейна должно быть не менее 15 см. Данный запас обеспечивает ровное расположение шторы, она не будет ложиться на выступающую часть подоконника.
Как повесить карниз: детальное описание процесса монтажа
Установка карниза обычно занимает не более 20-30 минут и под силу каждому, даже тому, кто делает это в первый раз. Сам процесс разбит на две части:
Разметка места установки.Фиксация изделия.
Разметка места установки карниза
Предварительная разметка места крепления необходима для того, чтобы установить карниз именно в нужном положении и туда, куда надо, а не переделывать всю работу и сверлить новые отверстия, когда будет замечено, что конструкция стоит криво. Выполняется она в несколько этапов:
Определиться с местоположением карниза — на какой высоте он будет крепиться.Выполнить замеры между держателями конструкции. Это позволит не высчитывать расстояния между опорными кронштейнами и избежать случайных ошибок.Отмерить нужное расстояние от потолка, сделать карандашом основную засечку по центру оконного проема — здесь будет крепиться центровой кронштейн карниза.Отмерить рулеткой от центральной засечки нужное расстояние до следующих держателей, сделать отметки.Приложить опоры кронштейнов к отмеченным местам, пометить точки под отверстия для крепежа.
Во время разметки места установки держателей обязательно убедитесь, что в местах крепления не находятся провода электропроводки. Для этого при выполнении работ следует свериться с проектом или же воспользоваться специальным индикатором, который контролирует электрическую наводку.
Также во время проведения разметки следует делать все отметки относительно потолка, а не линии горизонта. Объяснение простое — во многих помещениях потолок имеет наклон, и если установить карниз параллельно линии горизонта, то относительно поверхности потолка он будет казаться кривым.
Установка карниза
Места крепления отмечены, осталось только зафиксировать конструкцию. Для этого понадобятся перфоратор или дрель, дюбеля и саморезы. Большинство производителей в комплектацию карнизов вкладывают также и крепеж для его фиксации, но это не значит, что надо обязательно воспользоваться именно им. Возможно, он может вам и не подойти.
А все потому, что тип крепежа подбирается индивидуально в зависимости от материала стен. Например, для бетонных стен нужны классические дюбеля, для пеноблоков лучше взять специальные пластиковые втулки, а в деревянные стены кронштейны можно сразу прикрутить шурупами.
После того, как крепеж подобран, следует просверлить отверстия нужного диаметра и требуемой глубины, вставить туда дюбеля, приставить монтажную пластину и скрепить все детали саморезами. Все, карниз закреплен.
При проведении работ следует учитывать, что сверление отверстий чревато большим количеством пыли, которая оседает на обоях и которую сложно убрать, особенно если те фактурные. Поэтому рекомендуется использовать перфоратор с пылесборником, чтобы облегчить себе уборку в дальнейшем.
Монтаж карниза на гипсокартон
Гипсокартон широко используется для ремонта жилых и офисных помещений, и если у вас стены также обшиты этим материалом, то учтите тот факт, что технология крепления будет немного отличаться от стандартного способа.
Для установки карниза следует воспользоваться анкерами, причем их длина должна быть больше толщины листа гипсокартона, так как они должны фиксироваться непосредственно в самой стене, а не в обшивке. Такой тип крепления позволит обеспечить надежную фиксацию подвесной конструкции. К тому же, если планируется вешать тяжелые шторы, то это единственно возможный способ монтажа.
Если же будут вешаться легкие занавеси, а карниз изготовлен из пластика или алюминия, то можно заменить анкера на раскрывающиеся дюбели, например, на дюбели-бабочки или дюбели-зонтики.
Во всем остальном алгоритм установки карниза схож с предыдущим описанием.
Как крепить карниз на натяжном потолке, если не предусмотрены закладные?
Если по какой-то причине в комнате уже есть натяжной потолок без системы закладных, но нет карниза, а установка настенного варианта невозможна, не расстраивайтесь: установка потолочного пластикового карниза или потолочной шины возможна.
Вариант 1.
Правильно определяем размер отступа от стены, прикладываем потолочный карниз наверх и с помощью карандаша, вставленного в отверстия на карнизе, отмечаем на потолке точки крепления.
Берем пластиковые колечки диаметром 30-40 мм, промазываем их по периметру без пропусков и клеим ровно по центру отмеченных точек крепления (отмеченная точка – центр круга) на супер-клей. При необходимости можно клеить кольцо, немного сместив его от центра – это нужно, чтобы кольцо не выглядывало из-за гардины.
С помощью ножа вырезаем отверстие внутри кольца, вставляем под натяжной потолок перфоратор или дрель и сверлим отверстие под крепеж. Вставляем в проделанное отверстие дюбель, прижимаем карниз и фиксируем его к потолку.
Минус такого варианта: потолочная шина в месте крепления не будет плотно прилегать к потолку, так как даже небольшая толщина кольца в 2 мм не позволит ей это сделать.
Совет: если отверстия в гардине большие, лучше фиксировать ее не на саморезы, а на пресс-шайбы. Этот вариант крепления исключает проваливание крепежа в отверстие, а также предохраняет гардину от повреждений в случае сильного затягивания крепежа.
Вариант 2.
Отмечаем на потолке точки крепления по аналогии с первым вариантом.
Обклеиваем отмеченную точку по периметру в форме квадрата лейкопластырем, внутри которого делаем крестообразный надрез.
В образовавшуюся прорезь на потолке вставляем подходящий инструмент и делаем отверстие, в которое вставляем дюбель. Прижимаем карниз к потолку и фиксируем с помощью выбранного средства крепления.
Совет: если после крепления гардина остается достаточно подвижной, можно использовать следующую хитрость. Берем кусок полипропиленовой трубы, вставляем в отверстие на потолке до упора и отмечаем место, где она находится на уровне натяжного потолка. Отпиливаем трубу по метке и перед фиксацией карниза, вставляем эту трубу в отверстие, и только после этого прикручиваем карниз к потолку. Проделываем это действие с каждым отверстием. Дополнительное крепление в виде трубы уберет подвижность карниза, так как он теперь будет прижиматься не просто к натяжному потолку, а к трубе в нем.
Особенности соединителя для карниза для штор
Профильные карнизы можно устанавливать абсолютно любой длины и формы, используя соединительный элемент для стыковки. С использованием такой конструкции есть возможность собрать не только прямой карниз для потолочного крепления или на стену, но и различные изогнутые или закругленные схемы.
Чтобы реализовать задумку, нужно запастись необходимым количеством профилей и подобрать соединители.
Профиль карниза бывает двух типов:
московский;турецкий.
Турецкий подразумевает, что соединитель и декоративная вставка (заглушка, которая завершает карниз мешает крючкам соскакивать с профиля) добавляют конструкции около 3 см.

Турецкий карниз увеличивает длину профиля заглушкой.
Московский профиль соединяется так, что к размеру изделия ничего не прибавляется. Его особенность: нужно брать количество соединителей профиля равное числу его рядов.

Московский карниз не добавляет длину к соединительному профилю.
Как собрать?
Для того чтобы правильно собрать карниз, необходимо учесть особенности конструкции.
У каждой модели имеются свои нюансы сборки:
Перед сборкой штангового карниза настенного типа необходимо для начала определить необходимую длину штанги. Обычная штанга при необходимости подрезается на нужную длину. Раздвижной вариант выдвигается на определённую длину.Затем нужно подготовить крепления для штор. Как правило, в качестве креплений используются кольца с крючками, которые нанизываются на штангу в нужном количестве. Одно кольцо должно находиться между заглушкой и кронштейном, благодаря такому расположению штора не сползёт к центру. Если используется два кронштейна, то можно надеть сразу все кольца, если используется три кронштейна, то лучше половину общего количества. После того как кольца окажутся на штанге, можно ставить заглушку.Теперь можно приступать к фиксации штанги к кронштейну. Сначала с одной стороны, а затем и с другой штанга плотно фиксируется с помощью саморезов.При наличии нескольких рядов процесс повторяется аналогичным образом. После этого можно прикрепить кронштейн с конструкцией к стене.
На какой высоте следует крепить?
Выбор высоты имеет большое значение при установке карнизов настенного типа. От того, на какой высоте будет зафиксирована конструкция, зависит визуальное восприятие интерьера в целом. Чем выше установка, тем больше и просторнее кажется помещение. Данное утверждение особенно актуально для комнат с небольшой площадью и низкими потолками.
Высота монтажа конструкции зависит также от длины занавесок. Минимальный зазор между окном и штангой карниза должен быть не менее 5 см. Определение уровня подвеса карниза зависит от способа крепления полотен. Если в качестве крепления для занавесок будут выбраны люверсы, нужно оставить минимальный зазор между штангой и потолком (5-7 см). Это необходимо сделать для свободного передвижения занавесок, снабжённых люверсами.

Как правильно и ровно повесить настенные модели?
Чаще всего на стену вешаются круглые трубчатые и струнные карнизы.
Порядок работы:
- Для того чтобы настенная конструкция висела ровно, необходимо сделать разметку под кронштейны на стене. Для модели менее 2.4 м в длину достаточно двух кронштейнов, а для более длинных конструкций необходимо установить третий кронштейн, расположив его по центру.Для правильной разметки необходимо для начала отложить с каждой стороны оконного проёма 15-25 см и провести карандашом прямую линию перпендикулярно потолку.Затем от середины верхней части оконного проема откладываем нужную величину и ставим точку.От неё проводим линию с помощью строительного уровня и линейки до пересечения с боковыми линиями. Точки пересечения двух линий являются местами для крепления кронштейнов.Теперь прикладываем крепёжный элемент кронштейна к стене и делаем отметки для отверстий.С помощью перфоратора просверливаем отверстия и вставляем дюбели. После установки дюбелей можно фиксировать крепёжный элемент кронштейна и вешать карниз.
Струнный карниз состоит из одной или двух струн, кронштейнов и коробок, с помощью которых и происходит натяжение струн. После разметки и фиксации оснований кронштейнов можно приступать к натяжению струны.
Один конец струны пропускается через отверстие в креплении и фиксируется с помощью винтов. Затем кронштейн прикручивается к основанию на стене. Аналогичным образом струна фиксируется с другой стороны и крепится к основанию. После установки проводится завершающая корректировка.Для того чтобы натянуть струну старого образца необходимо открыть коробку найти болт и с помощью специальных инструментов подтянуть шайбу на болте с каждой стороны.
Преимущества заказа услуги у нас
Обращаясь за помощью к нам, вы можете рассчитывать на оптимально низкую стоимость работ. Также наши мастера индивидуально подходят к выполнению поставленной задачи и могут помочь недорого приобрести надежные расходные материалы. Таким образом, вы сможете существенно сэкономить на ремонте, не потеряв в качестве.
Монтаж потолочных моделей и установка заглушки
После обрезки профиля до необходимой длины в нём просверливаются отверстия через каждые 50-60 см. Затем он прикладывается к потолку, отступив предварительно 10-15 см от стены, для того чтобы сделать отметки. Сверлом меньшего размера просверливается отверстие по центру, в которое вставить дюбель. После этого можно прикладывать профиль к потолку и крепить с помощью центрального самореза.
После этого профиль выравнивается в нужном положении, и делаются остальные разметки. Теперь можно просверливать остальные отверстия и вставлять дюбеля. Готовую конструкцию со вставленными крючками и заглушками с обеих сторон фиксируем на потолке с помощью саморезов.
Влияние материала на параметры крепления
Огромное разнообразие карнизов в массовой продаже, их кажущаяся схожесть и фактическое разнообразие могут не смутить только профессиональных ремонтников-отделочников. Неопытный пользователь имеет право растеряться, но не имеет права на ошибку. Поэтому перед тем, как купить карниз и повесить гардину, нужно разобраться в особенностях каждого, решить какой и с какими параметрами выбирать.

Деревянные
Деревянные карнизы самые красивые и экологически чистые, так как выполнены из натурального материала. Но они же и менее прочные, так как могут рассыхаться, трескаться, деформироваться от времени и влаги.

В защитных целях их обрабатывают морилкой и лаками. Гладкая, хорошо и ровно прокрашенная поверхность древесины говорит о качестве карнизов.
Пластиковые
Карнизы из пластика доступны по цене. Они прочны и выдерживают любой тип ткани. Есть простые минималистичные и вычурные декоративные модели на любой вкус.

Их крепление может осуществляться к стене и к потолку. Обычно работа не вызывает затруднений. Монтаж осуществляется традиционным способом – на саморезы.
Отличительная особенность пластиковых изделий их гибкость. Это свойство позволяет установить их на нестандартные окна, ниши, эркеры. Разнообразная расцветка и малый вес делают пластиковые карнизы универсальными.
Багетные
При помощи багетного карниза можно «убить сразу двух зайцев». Они функциональны и декоративны одновременно. Багет можно прикрепить на стену и к потолку. Он скрывает струнное, штанговое, рельсовое крепление. Может быть с одним, двумя и тремя и более рядами креплений под шторы.

Карнизы подходят под классический, стиль барокко, кантри и эко-стиль. Самые распространенные – пластиковые багеты, самые прочные – с основой из металла, самые дорогие – гипсовые. В типовых квартирах последние почти не используются. Вряд ли кому-то придется устанавливать гипсовую лепнину у себя дома собственноручно. Их полноправное место в музейных и дворцовых интерьерах.
Металлические и металлопластиковые
Самые оптимальные по соотношению цены и качества, долговечные, простые в сборке и установке – карнизы из металла. Они могут быть хромированными, с золотистым или серебристым напылением, иметь покрытие под ценные породы древесины.

Декор встречается самый разнообразный. Одни из наиболее дорогих и красивых металлических карнизов – кованые.
Устанавливаем карниз на эркерное окно
Для эркерных окон лучше использовать гибкие карнизы, устанавливаемые на потолок:
Перед установкой профиль нужно вывернуть. Для этого одной рукой придерживаем конец профиля, а другой рукой проводим по нему, выгибая его в обратную сторону. Для лучшей корректировки данные действия нужно повторить 2-3 раза. После этого можно делать разметки для кронштейнов, отступив от стены на нужную величину.Кронштейны обязательно должны быть прикреплены в двух точках. Расстояние между кронштейнами должно находиться в пределах 35-40 см, это нужно для более ровной фиксации профиля. Для формирования углов необходимо разместить кронштейны на расстоянии 6-8 см от угла.
Форму карнизу необходимо придавать на полу, а небольшую корректировку можно проводить непосредственно на месте.
Готовый карниз крепим к кронштейнам, устанавливаем заглушки и прикрепляем крючки.
Потолочное размещение карнизного устройства
Потолочный карниз, выполненный из прозрачного гибкого пластика, не заметен на потолке, может принимать различные формы. Его также удобно использовать для окон нестандартной формы – треугольных, мансардных, эркерных, нишевых.
Крепление карнизных устройств к бетонному потолочному основанию
Установка потолочного карниза проводится поэтапно с соблюдением технологии:
Прежде чем повесить карниз на потолок, сделайте достаточный отступ от стены. Нужно, чтобы шторы свободно свисали и не топорщились в задрапированном виде, не касались радиаторов отопления, труб, стояков и подоконника. Обычно отступ для крепящейся шины составляет 15-20 см;Если производитель не предусмотрел отверстия для крепления, их нужно высверлить в пластиковом карнизе самостоятельно специальным сверлом. В этом случае шаг для сверления составляет 50-60 см для надежности и равномерного распределения нагрузки. На широких карнизах отверстия нужно располагать в шахматном порядке;

Учтите также, что шляпки саморезов должны быть минимум на 2 мм больше диаметра высверленного отверстия. Как вариант можно использовать в этих целях подкладные шайбы;Далее вымеряем длину карниза над окном и отрезаем лишнее ножовкой по металлу;Все части карниза, включая декоративный багет, поворотные детали и заглушки нужно поставить на место перед тем, как карниз будет прикреплен на постоянное место;Прикладываем карниз к размеченному участку на потолке (тут может понадобиться чья-то помощь) и отмечаем точки сверления через отверстия в карнизе;

Берем сверло по бетону и делаем отверстия в потолке по размеру дюбелей. Чтобы защитить глаза от бетонной крошки и пыли следует надеть пластиковые плотно прилегающие очки, а на наконечник сверла одевается специальная чаша для сбора пыли. Ее можно сделать из донышка пластиковой бутылки;

В отверстия вставляются дюбеля, выступающие части дюбеля нужно обрезать острым ножом;Приложить карниз и прикрепить его на саморезы. Вначале прикручивают саморезы по краям и в центре, чтобы закрепить карниз «на живую», и он не провисал. Затем прикручивают все остальное.
Как закрепить на гипсокартоне и на пластиковых панелях?
Для того чтобы установить карниз на гипсокартонную поверхность, необходимо запастись специальными креплениями. Надёжную фиксацию конструкции обеспечат дюбель-бабочки. При их вкручивании раскрываются распорные боковые плоскости, благодаря которым сцепление с поверхностью гипсокартона становится более прочным.
Отверстия в шине
Установка шинного карниза предполагает просверливание монтажных отверстий, которые необходимо сверлить в интервалах между дорожками.

Важно подчеркнуть, что нужно сверлить оба слоя. После этого можно устанавливать приспособление на потолок.

Установка в полостях натяжного потолка
Чтобы повесить карниз в полости натяжного потолка надо сначала установить брус. Он должен иметь такой же размер, как и выбранная модель карниза, но чуть меньше уровня натяжного потолка. Брусок крепится к потолочной поверхности с помощью дюбелей.
После того как полотно будет натянуто, необходимо сделать отметки и установить специальные кольца для предотвращения разрыва полотна. После этого отверстия аккуратно прожигают и приступают к монтажу карниза.
Крепление штор
Существуют разные виды шторных креплений, которые подбираются в зависимости от конструкции модели, плотности ткани и дизайнерских задумок:
Самыми традиционными и привычными являются крючки, изготавливаемыми из прочного гибкого пластика. На сегодняшний день их существует огромное множество. С их помощью можно подвесить шторы различными способами. Есть модели, которые одним концом крепятся к шторной ленте, а другим вставляются в паз профильной конструкции. У штанговых моделей несколько иное крепление. Одним концом крючок подсоединяется к кольцу, которое надевается на штангу, а другим к шторной ленте.В отличие от крючков, прищепки удерживают штору с помощью зубцов, обеспечивающих плотное сцепление с полотном. К карнизу они присоединяются с помощью колец.Шторы также могут крепиться с помощью люверсов, петель, завязок и кулиски.
Комплектующие и детали
Карниз — это сборная конструкция, состоящая из нескольких деталей. Благодаря этому можно легко собрать изделие из разных комплектующих под свой вкус либо же, если старая модель уже устарела по дизайну или надоела, легко можно заменить некоторые детали и обновить ее. В то же время это доставляет некоторые неудобства, например, при монтаже и демонтаже надо дополнительно собрать или разобрать конструкцию.
Карниз состоит из следующих составных частей:
Основные элементы: штанга, шины, заглушки, наконечники, кольца для подвеса занавесей.Кронштейны: монтажные чашки, установочные пластины и прочие крепежные элементы, на которые крепится карниз. Бывают разных форм и размеров.Крепеж: это все те детали, с помощью которых конструкция крепится к основанию стены.
При необходимости каждый из этих элементов можно заменить. Это дает неограниченные возможности для внесения изменений в дизайн и крепление конструкции и позволяет легко и быстро разрешить проблему, если вдруг что-то сломалось.










