- Как рассчитать размеры карниза для штор: рекомендации специалистов
- Чем руководствоваться, выбирая размер карниза
- В разных комнатах
- Коэффициент пышности
- Зависимость длины от ширины проема и ткани для гардин
- Внешний вид и стиль
- Как выбрать оптимальные параметры карниза
- Гардина на подвесной потолок
- Оформление окон
- Какой длины должен быть карниз для штор
- Учимся правильно рассчитывать длину карниза по отношению к окну
- Почему важна помощь эксперта в разработке внешнего вида окна?
- Практические советы
- Как установить карниз своими руками?
- Дорабатываем параметры ширины до идеала
- бантовые складки
- Узнай, как рассчитать длину карниза для штор
- Учимся правильно рассчитывать длину карниза по отношению к окну, фото
- Как сделать идеальные шторы?
- Как правильно подобрать карниз?
- Конструкция карниза
- Как рассчитать длину карниза
- Учимся правильно рассчитывать длину карниза по отношению к окну
- Российские стандарты
- Как выбрать карнизы с багетной планкой
- Выбор длины и ширины штор в зависимости от типа помещения
- Выбираем размер штор для кухни
- Выбор размера штор в гостиную
- Как выбрать размеры штор для спальни
- Как выбрать размеры штор для детской
Как рассчитать размеры карниза для штор: рекомендации специалистов

Недостаточно подобрать модель карниза, подходящую к шторам и общему стилю интерьера. Немаловажную роль играют размеры и ширина карнизов для штор. Неправильно подобранные параметры могут не украсить, а наоборот, выделить недостатки оконного проема, испортив созданную в комнате атмосферу.

Чем руководствоваться, выбирая размер карниза
Чтобы скрыть недостатки и подчеркнуть достоинства окна, необходимо правильно подобрать размеры держателя для штор. В расчетах необходимо учитывать следующие параметры:
Размер оконного проема, есть ли необходимость его корректировать (например, если окно узкое, то можно его зрительно увеличить при помощи карниза).Вес штор. Для тяжелых портьер надо брать карнизную палку диаметром большего размера, чем для легких занавесок.Модель портьер. Например, падающие красивыми складками, с тюлем и ламбрекеном шторы потребуют конструкции большего размера, обладающей несколькими рядами для крепления занавесок, а практичные римские шторы нуждаются в соответствующей модели карниза, почти не превышающего размеры окна.Метод крепления. Держатели для занавесок могут быть настенными или потолочными. Рассчитываются размеры настенных карнизов для штор не так, как размеры для потолочных, а модель креплений для стильных римских штор, как правило, крепится внутри оконного проема или непосредственно над окном (реже под потолком).Для настенных карнизов, состоящих из штанги, декоративных наконечников и кронштейнов крепления, следует решить, на каком расстоянии от стены должна находиться конструкция. Исходя из этих размеров, надо подбирать длину кронштейнов. В кухне с легкими однорядными занавесками можно обойтись короткими и тонкими, которые придадут воздушность конструкции, особенно, если они сделаны из пластиковых полимеров и гармонируют с цветовым оформлением.

Размеры карниза для штор




В разных комнатах
Решая задачу, какой длины должны быть шторы в гостиной, детской или кухне, ориентируются на собственное чувство прекрасного и здравый смысл. Так, если помещение не может удивить высокими потолками, длинные портьеры с глубокими складками могут оказаться неуместными; исключением станут полупрозрачные и ажурные ткани: муслин, органза, вуаль, сетка или гипюр.

Сдержанная геометрия
В некоторых случаях следует осторожно использовать пышную драпировку. Она идеально подходит для просторной гостиной или спальни, придавая интерьеру ощущение легкости. Небольшая гостиная также выиграет от легкой драпировки. В кабинете иди кухне достаточно умеренной, чуть заметной сборки, с КС=1,5 или 2. Для разных жилых комнат рекомендуется следующая длина портьер:
Гостиная. Оконный декор помогает подчеркнуть структуру помещения, иногда становится акцентом интерьера. Традиционно для гостиной выбирают длинные модели, полностью прикрывающие оконный проем, ниспадающие на пол или вровень с ним. Для небольшой комнаты выходом станут лаконичные гардины, опускающиеся чуть ниже подоконника. Если ваше внимание привлекают роскошные, драпирующиеся на полу шторы, выбирайте легкие ткани (шелк).


Кухня. Самые эффектные шторы приобретаются для гостиной, но для кухни важнее рациональность: соображение практичности и безопасности. Поэтому здесь в ходу декор, заканчивающийся над подоконником или чуть ниже, например, римские модели. Если помещение просторное, а окно находится около столовой зоны, допустимы шторы, заканчивающиеся над самым полом. Если на кухне есть балкон, портьеры стоит дополнить планками-утяжелителями.


Спальня. Прикидывая, какой длины должны быть шторы в спальне, большинство хозяев отдают предпочтение длинным светлым моделям в пол, зрительно поднимающим потолок в обычно небольшой комнате. Если место под окном отдано кровати, выбор делают в пользу штор средней длины; к месту будет рулонная модель из ткани блэк-аут, надежно защищающей отдыхающих хозяев от солнца.

Детская. Здесь к оконному декору предъявляют особые требования. Ниспадающие на пол шторы противопоказаны в спальне маленького ребенка; для них слишком велик риск быть оборванными или испачканными. Длинную модель заменяют короткой или рулонной. Декорировать окно в спальне подростка намного проще — он сам подскажет, какие шторы ему нравятся.

Коэффициент пышности
Шторы никогда идеально ровно не висят на окне, всегда должны быть сборки или складочки. Драпировка – стандартный дизайнерский прием.

Количество и глубина складок зависят от фактуры ткани, ее веса. Общепринятые коэффициенты пышности в зависимости от высоты потолков.

Как рассчитать складки на шторах:
фактура органзы позволяет делать многочисленные складки, расход ткани увеличивается от 2 до 4 раз (при большой пышности можно ограничиться одной органзой, не делать портьеры);тюля покупают 1,5 –3 ширины (чем воздушнее ткань, тем больше коэффициент пышности можно предусмотреть);вуали – от 1,5 до 2,5;шелка – от 1,2 до 3;льна – от 1,5 до 4 (при креплении на люверсах);смесовых тканей – от 1,5 до 3,5;бархата, жаккарда, плотных портьер – от 1,2 до 2,5.



Ткани с крупным рисунком, большим цветочным принтом нужно расправлять по окну полностью, чтобы не было аляповатости. Для них складочки, сборки неприемлемы. Вид сборок зависит от типа крепления.

Самый большой коэффициент пышности у карандашных складок и буфов. Чуть ниже – у гардинной ленты и люверсов. Если штора висит на петлях, ее сильно не присборивают.

Зависимость длины от ширины проема и ткани для гардин
Большинство дизайнеров считают, кощунством выбирать карниз, размер которого равен ширине проема. Иногда с ними можно поспорить. В некоторых случаях приобрести изделие иной длины, нереально. Окно может быть расположено, например, между стеной и полуколонной. Другой размер просто не сможет вписаться в проем.
Такой метраж помогает скорректировать величину проема. Ведь в данном случае при открытии штор проем будет открываться частично. Они оставаются на окне, а не уходят на простенок. Этим приёмом смогут зрительно уменьшить окна.
Такая длина уместна, если нет плотных ночных портьер. Проем задрапирован тюлем или иным легким материалом. Свет будет поступать в должном объеме, а двигать текстиль не нужно. Римские шторы также диктуют моду на карнизы по размеру окна.
Прислушиваясь к совету дизайнеров, выбрать протяжённость следует из расчета ширины проема плюс 10-25 см. с каждой стороны. Длина позволит отодвигать гардины на простенок, а свет проникнет в полном объеме. Шторы будут спускаться эффектными воланами, что позволит сделать красивую драпировку в дневные часы. Такое крепление продемонстрирует окно в натуральную величину, не искажая размера.

Но если имеющихся габаритов недостаточно, то прибегают к увеличению длины на 25 см и более. Рассчитать размер повышения лучше с помощью швеи. Она точно скажет сколько нужно места для эффектного расположения штор. В данном случае необходимо иметь широкие простенки, что бы ни исказился размер комнаты. При таком карнизе воланы будут плавными, а раздвинуть драпировку можно гораздо сильнее.
Если для пошива штор выбрать плотную и тяжелую ткань, то следует увеличить длину еще 10-15 см. с каждой стороны. В противном случае материал просто сомнется, и потеряет начальный привлекательный вид.
Внешний вид и стиль
Шикарно выглядят металлические кованые карнизы с изящно изогнутыми и необычными наконечниками, которые привносят в интерьер элементы средневековой эстетики. Обратите внимание на все комплектующие – кольца, наконечники, кронштейны, на их диаметр. Вид этих изделий, выполненных на заказ, чрезвычайно красив. Это уже не просто обычные приспособления для крепления штор, а эксклюзивные модели, придающие Вашему интерьеру неповторимую красоту и уникальный стиль. Благодаря всевозможным деталям – зажимам, держателям, крючкам — можно достигнуть невероятных по своей красоте результатов.
С точки зрения практичности удачным выбором станут потолочные пластиковые карнизы шинного типа. Потолочные «шины» являются оптимальным сочетанием компактности, прочности, высокой весовой нагрузки. Правда, в плане эстетики эти изделия вряд ли станут эффектным украшением интерьера. При наличии арочных проемов, эркерных ниш или других нестандартных случаев разумней использовать профильные карнизы.
Пластичность алюминия позволяет изгибать профиль в горизонтальной и вертикальной плоскостях.
Отдельно следует упомянуть римские шторы. Безотказная работа ручного или электрического привода должна идеально обеспечивать вертикальное движение ткани, а также его фиксацию на определенном уровне. Он подбирается в зависимости от размера и веса полотна.
Как выбрать оптимальные параметры карниза
Какие размеры карнизов для штор будут оптимальными? Эта величина высчитывается индивидуально:
В случае, когда размеры окна устраивают хозяев, длина карниза рассчитывается, исходя из ширины оконного проема с добавлением по 20 см с каждой стороны. Тогда раздвинутые шторы будут полностью открывать окно.

Для плотных тяжелых гардин, особенно если они плохо драпируются, лучше брать карнизную палку подлиннее, сильно выходящую за пределы окна.

Рассчитать размеры карниза для римской шторы просто, достаточно замерить ширину окна. Держатели для римских штор можно приобрести готовыми или заказать в мастерской. Их чаще всего изготавливают из дерева, металла или пластиковых полимеров. Пластиковые или металлические римские карнизы отлично впишутся в интерьер кухни.
Для двух расположенных рядом окон хорошо приобрести общий держатель для штор. Тогда замеряется ширина окон, ширина стенного проема и к этому результату добавляется 40 см.

Когда планируется установить скрытый потолочный держатель портьер, нужно учитывать размер подоконника. Занавеска не должна касаться подоконника и отопительной батареи. Скрытые потолочные держатели удобно устанавливать в комнатах с навесным потолком. Скрытые карнизы практичны и занимают мало места.

Размеры потолочных карнизов для штор невелики. Исключением служит вариант, когда потолочную конструкцию размещают по всей ширине комнаты, позволяя портьерам двигаться не только в пределах окна, но и от стены до стены. Применение потолочных карнизов позволяет красиво задекорировать окна, а также отделить при помощи занавески часть помещения.

Какой длины должен быть настенный или потолочный держатель для портьер, каждый выбирает для себя сам. Но стоит помнить, что правильно подобранные размеры карниза не только создадут уютную атмосферу, но и облегчат различные манипуляции с портьерами.



Гардина на подвесной потолок
Правильное крепление карниза на подвесной потолок из гипсокартона предусмотрено наличием заранее монтированной деревянной планки или куска профиля из металла. К такому каркасу из установленных для гардин элементов фиксируется изделие.

Если заранее не был предусмотрен вопрос, как прикрепить карниз для подвесной системы, можно использовать анкера. Данный способ приемлем, когда расстояние между гипсокартоном и черновым потолком небольшое. Тогда отверстия можно проделать через ГКЛ и вкрутить анкера отверткой.
При неопределенном варианте монтажа подвесного потолка пользуются большим количеством крепежей. Их нужно размещать на небольшом расстоянии друг от друга. Это поможет компенсировать хлипкость основания.
Оформление окон
Размер тюли и штор напрямую зависит от:
- типа занавески (римские или гардины);длины карниза;параметров и особенностей оконного проема;общей задумки дизайнера.

Чтобы при покупке портьерной ткани избежать досадных ошибок, нужно грамотно рассчитать размер штор.
Если один из этих факторов не учтен, то сложно будет правильно вычислить стороны и площадь изделия. Соответственно, под угрозой эстетическая часть предприятия.
Если тюль будет слишком коротка, она не сможет выполнять своей прямой функции – рассеивать солнечный свет и дополнять оформление комнаты. Особенно это касается гостиной, ведь изъян бросается в глаза и портит общее впечатление, настроение.

Выбор карниза зависит от дизайна помещения, размера декорируемой поверхности, фасона штор, веса и фактуры ткани, от способа его крепления, на стену или потолок.
Если недостаточно длины у портьер в спальне, то они не смогут полноценно затемнять пространство. А чрезмерно габаритные размеры выглядят неопрятно, к тому же, это небезопасно. С ними неудобно обращаться в быту, а также они быстро пачкаются.

Производители аксессуаров для дома учли все нюансы, сегодня можно купить изделия стандартных размеров, которые подходят для всех типовых помещений.
Та же история, если неправильно выбрана ширина для штор: функциональность нарушается, эстетика отсутствует, общее впечатление снижается. А слишком широкие занавеси, как правило, означают лишь неаккуратный вид.

Оформляя эксклюзивные интерьеры, можно заказать систему крепления по индивидуальному проекту.
Какой длины должен быть карниз для штор
Здравствуйте, дорогие пользователи школы дизайна studyas.com! Сегодня я расскажу вам ещё об одной распространённой декораторской ошибке, которую совершают многие домовладельцы при оформлении окон в своих интерьерах.

Неопытные хозяйки очень часто совершают следующую декораторскую ошибку: они покупают карниз для штор, длина которого не превышает ширины оконного проема. Помимо этого, некоторые ещё размещают карниз прямо над оконным проёмом, образуя тем самым пустой (неоформленный) участок стены от карниза до потолка. Вдоволь насмотревшись на всё это безобразие, я и решил написать этот урок, который, надеюсь, предостережёт хотя бы наших читателей от совершения подобных ошибок при выборе и размещении карниза для штор.
В идеале карниз должен быть шире оконного проема на 10-15 сантиметров с каждой стороны, только в таком случае шторы будет смотреться гармонично. На расположенной ниже фотографии вы видите два карниза, длина которых приблизительно равна ширине оконных проемов (скорей всего, это было сделано специально, поскольку дизайном этой комнаты явно занимался специалист). Но такое решение, на мой взгляд, всё равно является неправильным, поскольку штора закрывает собой часть окна, а значит, в помещение попадает мало солнечного света. Было бы лучше, если бы карнизы были немножечко длиннее, тогда бы шторы не закрывали окна.
Учимся правильно рассчитывать длину карниза по отношению к окну
Производя замеры и расчеты, следует руководствоваться следующими принципами:
- Длина карниза может быть на 100-400 мм шире оконного проема;Крепления его от стены до стены должны располагаться на 2-3 см уже оконного проема;Через каждые полтора – два метра необходимо предусматривать крепление. Это поможет карнизу крепко держаться на стене, ведь шторы вещь нелегкая, а так же они подвергаются постоянному вмешательству со стороны. Монтируя потолочный карниз, стоит устроить крепление каждые 50 см.
Значит, чтобы правильно подобрать длину карниза, с помощью рулетки или измерительной ленты произведите замер ширины оконного проема. К полученной цифре добавьте от 100 до 400 мм. Параметр будет зависеть от плотности ткани и размеров комнаты. Широкие карнизы подойдут для массивных драпированных тканей, а также сделают помещение визуально больше. Полученную в ходе расчета длину разделите на два. Так вы получите необходимое количество креплений. Важно понимать, что при длине карниза менее 3х метров, будет достаточно 2х точек опоры, для остальных случаев необходимо закрепить его в 3х местах.
Существуют такие помещения, в которых на одной стене расположено несколько окон. В таком случае можно обойтись одним карнизом на оба проема, при условии, что расстояние между окнами не превышает полуметра. Однако не существует жестких регламентов и требований на этот счет. Раздельные шторы будут также смотреться гармонично и радовать глаз.
Почему важна помощь эксперта в разработке внешнего вида окна?
Сегодня для оформления окон можно использовать десятки тканей, различных по плотности, цвету, структуре и фактуре. Способов подвесить шторное полотно – не меньше. Помочь свести воедино все эти слагаемые под силу только настоящему художнику-дизайнеру.
При разработке дизайна штор профессионал учитывает не только особенности конкретной оконной ниши или оформления комнаты. Правильное использование портьер может скорректировать недостатки помещения, подчеркнув при этом его достоинства. Одновременно с этим занавески на окнах могут стать связующим звеном между отдельными элементами декора.
Поэтому, грамотно подобранные гардины способны решить множество вопросов, включая функциональные и эстетические задачи. Последний фактор, кстати, должен стать одним из ключевых моментов. Решение, как выбрать карниз для штор, является одним из самых ответственных действий дизайнера.
Практические советы
1. Помните, что общая длина карниза рассчитывается вместе с декоративными наконечниками. Оптимальное расстояние от наконечника до боковой стены составляет 2 см.2. Для карниза длиной до 150 см необходимы 2 кронштейна, 3 крепления для карниза 150–280 см и 4 для длины от 280 до 385 см. Это правило нужно соблюдать для обеспечения надежности конструкции. Чтобы вы смогли спокойно распахнуть шторы, установите кронштейны немного за пределами оконной рамы.3. Перед выбором карниза оцените расстояние от оконной рамы до потолка. Если оно слишком маленькое, то могут не уместиться некоторые кронштейны. В таком случае используйте потолочный способ крепления.4. Если вы думаете, как выбрать карниз для натяжного потолка, то лучше начать с крепления. В данном случае оптимальным вариантом являются настенные карнизы. Модели от компании ИКЕА можно закрепить любым способом. Например, карниз РЭККА имеет универсальные крепления. Еще одним вариантом карниза для натяжного потолка является гардинная система ВИДГА. Достаточно будет приобрести ее вместе с настенными креплениями.5. Выбирая карниз, обратите внимание на трубы и батареи. Скрыть боковые стояки поможет гардинная шина с угловыми соединениями. Также такая шина прекрасно подходит для эркеров.




6. Фурнитура имеет значение. Витые наконечники хорошо сочетаются с традиционным интерьером, а наконечники простых лаконичных форм подходят для комнат в современном стиле.7. Если помещение небольшое, то стоит присмотреться к потолочным карнизам и легким шторам светлых оттенков.
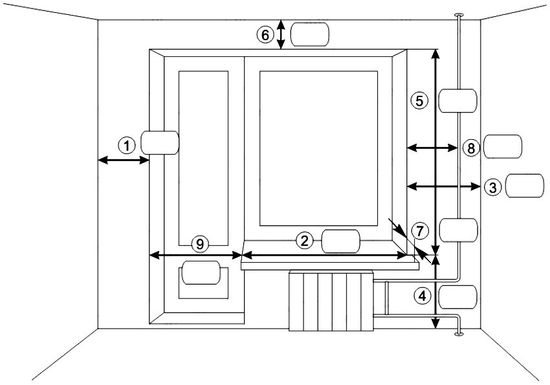
Как установить карниз своими руками?

Схема расположения карнизов для штор.
Чтобы собрать круглый карниз или полукруглый, особого опыта не надо, но есть ряд этапов, который рекомендуется придерживаться. Важно учесть, какого именно типа конструкция будет собираться, какие требования к ней применяются. В любом случае поверхность потолка должна быть ровной. Если установке карниза мешает потолочный плинтус, то его необходимо аккуратно отрезать. После выполняется разметка поверхности, для чего применяются:
строительный уровень;металлическая линейка;простой карандаш.
Делать разметку надо таким образом, чтобы отступ от края оконного пролета по обеим сторонам был одинаковым. Если разметка поверхности окончена, необходимо приступать непосредственно к крепежу. Просверливаются отверстия, в них забиваются дюбели. Шаг таких отверстий лучше всего соблюдать в 60 см. Обычно уже готовые пластиковые и металлические потолочные карнизы имеют просверленные отверстия в полотне, по которым очень просто ориентироваться.

Схема крепления карниза.
Но есть один момент, о котором нельзя забывать. Если карниз сделан из мягкого полимера, то он не будет держать дюбели. В этом случае предварительно надо подготовить небольшие металлические пластинки. Делают их для каждого отверстия. Теперь собирают сам карниз. Для этого в шины вставляются крючки для занавесей, после чего монтируются заглушки по краям. Прочность сборки обязательно проверяется. Для крепежа надо использовать специальные дюбели-бабочки. Такие элементы обычно используются для монтажа гипсокартонных листов, они после фиксации выпускают надежные упоры с обратной стороны.
При выборе таких дюбелей надо учесть нагрузки, в среднем они не превышают 5 кг для потолка и 8 кг для стен. Если планируется повесить штору с большим весом и дополнительным декорированием, то от такого карниза лучше отказаться в пользу металлического. Он позволит выдержать больший вес. После конструкция крепится к поверхности потолка, проверяется ее надежность, способность выдержать нагрузки.
Дорабатываем параметры ширины до идеала
Ширина гардины – не только расстояние от первого до крайнего крючка, а еще и учет драпировки, которую хочет сделать владелец. Пышность и объемность складок зависит и от площади, обстановки комнаты. Если окно находится в просторном помещении, около него впритирку не стоит мебель, то большое количество драпа будет выглядеть эффектно.

В скромные метражи лучше вписываются менее заметные складки.

Наиболее точные замеры получаются при использовании металлической рулетки, а не привычной сантиметровой ленты.
Это значит, что учесть необходимо следующее.
- В немаленькой спальне или гостиной часто маленькие окна, поэтому много драпировки там неуместно. То же касается дверного проема.Если оформление окошка характеризуется двухслойностью, то верхнее полотнище должно быть длиннее на 15 см, чтобы сделать более эффектный результат.Если помещение не отличается просторами, но и не слишком скромное, то можно пользоваться стандартами, считающимися от длины карниза. Его продолжительность (если две-три створки) обычно умножается на коэффициент в полтора. А длинные крепления для занавесок от двух до четырех метров перемножаются со значениями два и три соответственно.Если размеры окна и комнаты не пропорциональны, не стандартизированы, то можно отталкиваться от типа материала. Значения портьерных отрезков обычно умножают на одну целую и семь десятых, а вуаль, органзу с принтом – на два. Если последняя ткань без рисунка, то можно смело ее умножать на три.

Применение потолочных карнизов позволяет красиво задекорировать окна, а также отделить при помощи занавески часть помещения.
Важно: ламбрекен не считается так, как и занавеси, их продолжительность равна длине трубы-крепежа.
бантовые складки
В данном случае соотношение 1 к 2,5, то есть ткани надо взять в 2,5 раза больше длины карниза или длины ламбрекена в готовом виде.
3. Третий вариант(Рис.4), здесь уже с=0:

В данном случае мы имеем соотношение 1 к 3, т.е. ткани для пошива ламбрекена с данными значениями . мы должны взять в три раза больше готовой ширины ламбрекена.
Из этого следует, что при наибольшем количестве ткани по отношению к длине готового ламбрекена ( соотношение 1:3) — складки идут одна за одной без промежутков. Чем меньше ткани — тем больше промежутки между бантами(складками).
На рисунке 5 дана схема разметки бантовой складки в развернутом виде на ткани:

Теперь рассчитаем величины в и с, необходимые нам для закладывания складок в ламбрекене длиной 2м(200см) в готовом виде.
Будет полезно: Как раскроить ламбрекен качели
Задаем величину n-количество бантов на данный ламбрекен, учитывая, что в один бант будут входить величина в и с.
Пусть n=20
Вычисляем величину в.
200см(длина ламбрекена в готовом виде)
200см: n(в нашем случае это 20 см.)=10см.
Значит, в+с=10 см
1. Первый вариант: в=с, то есть 10:(в+с) то есть на 2=5см.=в=с
Количество ткани потребуется в два раза больше длины готового ламбрекена, то есть 4м(советую прибавить к данному количеству еще сантиметров 20-30)
2. Второй вариант: в=2с, то есть 10:(2с+с)=3,3=с, в=2Х3,3см=6,6 см.

Количество ткани для изготовления ламбрекена с заданными величинами потребуется в два с половиной раза больше длины готового ламбрекена, то есть 5м(советую прибавить к данному количеству еще сантиметров 20-30)
3. Третий вариант самый простой:
Здесь с=0. а значит величина в равна 10 см
Количество ткани для изготовления ламбрекена с заданными величинами потребуется в три раза больше длины готового ламбрекена, то есть 6м(советую прибавить к данному количеству еще сантиметров 20-30).
Если мы хотим заложить банты на определенную величину в, то вычисляем сначала количество складок.
Допустим, мы хотим, чтобы в=7см.
Возьмем для примера второй вариант, когда в=2с, тогда с=10,5см.(кстати, с-заданная величина, и может быть абсолютно любой).
То есть для заданных величин в и с мы должны заложить 19,о4 складки.
Округляем складки до полного значения, допустим до 19.
Теперь вычисляем величины в и с:
200_19=10,52=(в+с)=3с
С=10,94:3=3,5см.
В=сх2=3,5х2=7см.
Когда мы определились с количеством ткани, необходимой для пошива ламбрекена с бантовыми складками и размерами в и с, можно начинать закладывать складки на данный ламбрекен в соответствие со схемой на рис.5.
Здесь я описала способы расчета бантовых складок, но обычно величина в в бантовой складке я беру 6 см., а величину с=2-2,5 см или с=0
Тогда план раскладки для бантовых складок будет иметь следующий вид: 2-6-6-6-2-6-6-6-2…, где 2 – промежуток между складками, средняя 6 – внешняя часть складки, две другие 6 – внутренняя часть складки. Ткани в этом случае понадобится в 3 раза больше длины готового ламбрекена.И не забывайте прибавить к этому сантиметров 20-30 ткани на погрешность в закладывании складок, на обработку боковых сторон.
Но можно рассчитать и точное количество ткани, которое потребуется для оформления ламбрекена бантовыми складками.
Для этого достаточно знать длину ламбрекена в готовом виде и определиться с величинами в, с и n. Допустим, мы определили, что количество бантов в готовом ламбрекене будет равно 15, то есть величина n=15,в=6,с=2, значит ламбрекен в готовом виде, согласно схеме на рис.1, рис.2, рис.3, рис.4 равен (в+с)хn=(6+2)х15=120см.
Теперь обратим внимание на Рис.5, на схему бантовой складки в разложенном состоянии. Согласно данной схеме один бант включает в себя 3в +с
Значит , если 3в +с умножить на количество бантов(величину n) , то мы получим то количество ткани, которое нам требуется для данного ламбрекена. А именно (3х6+2)х15=300см+3см.на обработку боковых сторон=303см.
Но, все-таки, даже точно вычислив таким образом требуемое количество ткани на изготовление ламбрекена, я советую все-таки прибавлять сюда еще сантиметров 20-30.
Складки удобнее намечать и закладывать в висячем положении, то есть на бруске.
Затем к верхнему краю ламбрекена прикалываем шторную ленту, даем машинную строчку, подворачиваем ее наизнанку ламбрекена и уже вторую строчку даем по лицу ламбрекена, то есть по складкам, чтобы они не перекашивались(Рис.6). Но верх шторы будет выглядеть более декоративно, если его сначала заутюжить, потом заложить складки, отступить от края 2,5-3 см и пристрачить узкую (2-3 см) тесьму в 2 строчки. При таком способе вверху шторы образуется рюшечка. Попробуйте оба способа и сравните.

Для начала-лучше наметать.
Узнай, как рассчитать длину карниза для штор
Традиционный способ оформлять оконный проем, завешивая тюлем, не потерял актуальности – это беспроигрышный способ украсить комнату и создать в ней уют. Драпированное белое полотно способно придать помещению роскошный или торжественный вид даже без использования других приемов.
Тюль может быть произведен из синтетического, натурального волокна или их сочетания. Выделяют несколько его разновидностей:

Учимся правильно рассчитывать длину карниза по отношению к окну, фото
Традиционным методом оформления оконных проемов в комнате являются шторы. Они помогают поставить последний штрих в интерьере квартиры, создать уют в доме.
Перед выбором шторы необходимо определиться с фасоном. Он может быть декоративным. Такой вид используется в различных торжественных и актовых залах, зачастую в больших гостиных. Он подразумевает, что шторы будут оформлены один раз: они представляют собой предмет интерьера. Такой вид занавесок несет лишь эстетическое наслаждение, но не является функциональным предметом.

Следующим вариантом шторы являются занавески в жилых комнатах, которые помогают скрыть жильцов от посторонних глаз, а во время сна сдерживают лишний свет из окна. Они бывают лаконичными, шьются из плотных тканей.

Наиболее распространенным типом является смешанный. Тогда шторы несут практическую пользу – скрывают происходящие от лишних глаз и при этом выглядят красиво и дорого. Это беспроигрышный вариант для любого жилого помещения.

Как сделать идеальные шторы?
Чтобы подбирать занавески мечты, не всегда требуется образование дизайнера интерьера. Достаточно иметь вкус и учесть некоторые тонкости. Кто как не хозяин квартиры знает, какие именно шторы необходимы дому. Для начала, надо разобраться, из чего состоит композиция:
- Тюль – легкая, полупрозрачная ткань. Он придает окну законченный вид, не мешая свету озарять комнату, и редко используется отдельно от других составляющих. Производители предлагают сотни вариантов на любой вкус и кошелек. Определяющим параметром является ткань: вуаль, сетка, органза, хлопок, шелк;Портьера – темная часть занавесок. Благодаря своей тяжелой массивной структуре, ткань хорошо смотрится задрапированной и является определяющим элементом в украшении окна;Карниз – элемент, на который крепится штора. Он берет всю нагрузку на себя и передает её стене. Несмотря на техническую функцию, красивая конструкция для развески штор тоже является маленьким акцентом при создании интерьера.
И если подбор тканевой части – это дело и предпочтения лично каждого, то при выборе карниза, необходим точный расчет и знания.
Как правильно подобрать карниз?
Необходимо определиться с их типами. В зависимости от материалов они бывают:
- Металлические;Деревянные;Пластиковые.

Так, металлические карнизы отличаются своей изысканностью и прочностью, а деревянные придадут образу натуральности и свежести. Изделия из пластика применяются в современных или сложных интерьерах. Это объясняется тем, что этот материал может принимать любые формы.
Конструкция карниза
Традиционно они состоят из следующих элементов:
- Трубка;Боковые заглушки, декоративные элементы или скругления углов;Кронштейны, держатели или иные крепежные элементы.
Как рассчитать длину карниза
Длина карниза по отношению к окну либо превышает ширину оконного проема, либо бывает равной ей, но никогда не бывает меньше.
Равная ширина используется в нескольких случаях:
- Панорамное окно во всю стену. В таком случае нет выбора, карниз повторит очертания стен;На окнах предусмотрен лишь легкий тюль, без портьер. Ткань отлично пропускает дневной свет;Римские шторы. Особый вид занавесей, которые повторяет не столько ширину проема окна, сколько ширину застекленной части.
В остальных случаях длина карниза должна быть больше ширины окна, поэтому необходимо ее рассчитывать.
Учимся правильно рассчитывать длину карниза по отношению к окну
Производя замеры и расчеты, следует руководствоваться следующими принципами:
- Длина карниза может быть на 100-400 мм шире оконного проема;Крепления его от стены до стены должны располагаться на 2-3 см уже оконного проема;Через каждые полтора – два метра необходимо предусматривать крепление. Это поможет карнизу крепко держаться на стене, ведь шторы вещь нелегкая, а так же они подвергаются постоянному вмешательству со стороны. Монтируя потолочный карниз, стоит устроить крепление каждые 50 см.
Значит, чтобы правильно подобрать длину карниза, с помощью рулетки или измерительной ленты произведите замер ширины оконного проема. К полученной цифре добавьте от 100 до 400 мм. Параметр будет зависеть от плотности ткани и размеров комнаты. Широкие карнизы подойдут для массивных драпированных тканей, а также сделают помещение визуально больше. Полученную в ходе расчета длину разделите на два. Так вы получите необходимое количество креплений. Важно понимать, что при длине карниза менее 3х метров, будет достаточно 2х точек опоры, для остальных случаев необходимо закрепить его в 3х местах.
Существуют такие помещения, в которых на одной стене расположено несколько окон. В таком случае можно обойтись одним карнизом на оба проема, при условии, что расстояние между окнами не превышает полуметра. Однако не существует жестких регламентов и требований на этот счет. Раздельные шторы будут также смотреться гармонично и радовать глаз.
Российские стандарты
Отечественные производители уже давно знают, какой длины должен быть карниз для штор. Благодаря российским ГОСТам и иным стандартам, изготовители традиционно выпускают карнизы трех метров. Это обусловлено эргономикой помещений и расчетными характеристиками окон. В последние годы ассортимент стал расширяться, в магазинах всё чаще представлены товары иных длин, правда, они также фиксированы.
Выбрать карниз трех метров так же просто, как и любой другой тип. Стоит обратить внимание на то, из какого материала он изготовлен. Не малую роль играет диаметр трубы. Для начала стоит определиться с общей концепцией оформления окна. Диаметр будет важен, если шторы, которые выбраны, очень массивные и большие. Толстые карниз не сможет прогнуться и испортить вид.
Как выбрать карнизы с багетной планкой
Багетный потолочный карниз призван не только скрывать рабочие элементы за декором, но и выступать самостоятельной частью интерьера.
В последние годы такой тип потерял былую популярность, но все еще считается самым выгодным решением для оформления гостиной.
Багетные панели изготавливаются из дерева, металла или пластика, украшаются лепниной или позолотой. Основные моменты в выборе такого изделия зависят от дизайна.
Цвет и материал, из которого изготовлен багет, должны соответствовать стилю. А сам карниз не должен перебивать своим внешним видом остальные элементы интерьера.
Выбор длины и ширины штор в зависимости от типа помещения
Теперь представлю короткие рекомендации по выбору размеров штор в зависимости от типа помещения, где их будем использовать
Выбираем размер штор для кухни

Длина и ширина штор на кухне. Поскольку на кухне много источников загрязнения- жир, пар и прочие прелести, то для более легкого ухода за шторами предпочтительнее иметь шторы с малой площадью загрязнения. Под такой критерий подойдут шторы длиной до подоконника и с минимальным количеством складок по ширине., оптимально — гладкие, читай по ширине равной длине карниза. Конечно если вы не боитесь более частых стирок штор, то можно выбрать и длинные и более драпированные варианты.
Выбор размера штор в гостиную

Шторы в гостиную по длине. В гостиной хорошо будут смотреться классические шторы до пола. То есть длина штор равна расстоянию от карниза до пола плюс-минус крепление штор.Шторы в гостиную по ширине. Ширина зависит от размера комнаты и стиля интерьера. Если гостиная в классических стилях, то и драпировка штор допустима, а значит и ширина штор может быть рассчитана по таблице, приведенной выше. Если интерьер в современном стиле, например, интерьер в стиле минимализм, то ширина штор должна быть равна длине карниза- то есть гладкой и без складок.
Как выбрать размеры штор для спальни

Шторы в спальне предпочтительнее с объемной и погружающей вас в покой фактурой.
Длина штор для спальни. Хорошо подойдут удлиненные шторы с длиной на 20-30 сантиметров больше расстояния от карниза до пола.Ширина штор в спальне должна обеспечить максимум складок т.е. не менее 2,5 длины карниза.
Как выбрать размеры штор для детской

Шторы в детской должны легко стираться и не иметь лишних площадей для загрязнения. Активные малыши играют везде в том числе и около окон.
Длина штор для детской. Оптимальной будет длина до пола без лишних напусков. то есть расстояние от карниза до пола.Ширина штор в детской может быть как в гостиной без излишних складок, но можно сделать и более драпированные варианты т.е. ширина шторы от 1,5 до 2,5 длины карниза.
Конечно все выше озвученные рекомендации имеют общий характер, но я надеюсь, сто их было достаточно для погружения вас в тему. И теперь вы самостоятельно сможете выбрать размер штор в вашем доме.












